logo-locauxrama

Local d'activite à Vendre de 583m² à Mormant - Réf. 77.1714

Présenté par SISTOM

740.000€

Touchez l'image pour voir tous les visuels

Description

SISTOM vous propose à la vente des locaux dans un parc d'activités neufs à destination des PME.

Situé en Brie Nangissienne, ces locaux divisibles à partir de 90m2 pourront recevoir tout type d'activités.

Chaque lot dispose de places de parkings privatives, d'une porte sectionnelle et d'un espace bureaux.

Les plus grandes surfaces disposent de quais de déchargement, de places de stationnement PL et d'espaces extérieurs privatifs.

Surfaces : à partir de 90m2 jusqu'à 592 m2


DPE En cours

Les informations sur les risques auxquels ce bien est exposé sont disponibles sur le site Géorisques : www.georisques.gouv.fr

Informations financières

  • Prix de vente :

  • 740.000 Euros

Surfaces proposées

Surface totale de 583 m²

Accès routiers

Nationale 4
Autoroute A5

Consommation énergétique

DPE : En cours de réalisation.

Offres similaires

Surface totale 580 m² - Dispo. Immédiate

LOCAL D'ACTIVITE

77720, MORMANT

77_001255

Surface totale 2851 m² - Dispo. Immédiate

LOCAL D'ACTIVITE

77720, MORMANT

77_1715

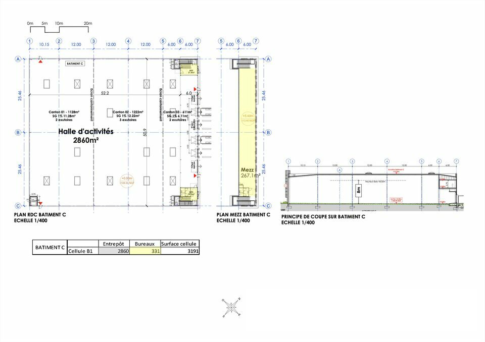
Surface totale 3191 m² - Dispo. nous consulter

LOCAL D'ACTIVITE

77720, MORMANT

77_001067