logo-locauxrama

Local commercial à Ceder de 46m² à Nice - Réf. 000B839756

Présenté par AZUREA COMMERCES & ENTREPRISES

198.000€ TTC F.A.I

Touchez l'image pour voir tous les visuels

Description

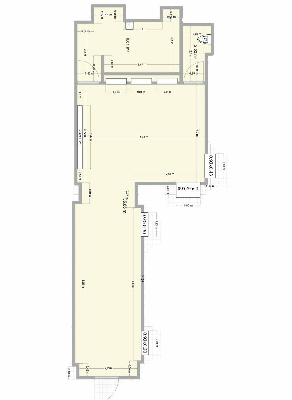
Rare sur le marché !!! A céder droit au bail d'une boutique située sur un emplacement N°1 au centre-ville de Nice. Surface: 46,30 m². Surface de vente de 35,66 m². Arrière boutique avec kitchenette et sanitaire. Climatisation. Accès PMR. Emplacement idéal avec flux piéton important et proche toutes commodités. Excellent état. Loyer CC et impôt foncier inclus: 1335 Euros/mois. Pris FAI: 198 KEuros


DPE En cours

Les informations sur les risques auxquels ce bien est exposé sont disponibles sur le site Géorisques : www.georisques.gouv.fr

Informations financières

  • Cession :

  • Loyer annuel :

  • 198.000 Euros TTC F.A.I

  • 12.041 Euros/an HC

Surfaces proposées

Surface totale de 46 m²
Linéaire façade de 3ml

Consommation énergétique

DPE : En cours de réalisation.

Offres similaires

Surface totale 194 m² - Dispo. Disponibilité à convenir entre les parties

LOCAL COMMERCIAL

06000, NICE

06_3661

Surface totale 38 m² - Dispo. Immédiate

LOCAL COMMERCIAL

06000, NICE

000F839151

Surface totale 80 m² - Dispo. Disponibilité à convenir entre les parties

LOCAL COMMERCIAL

06300, NICE

06_3513