logo-locauxrama

Bureaux à Louer de 60m² à Saint Laurent Du Var - Réf. 000X839368

Présenté par AZUREA COMMERCES & ENTREPRISES

9.600€ /an HC

Touchez l'image pour voir tous les visuels

Description

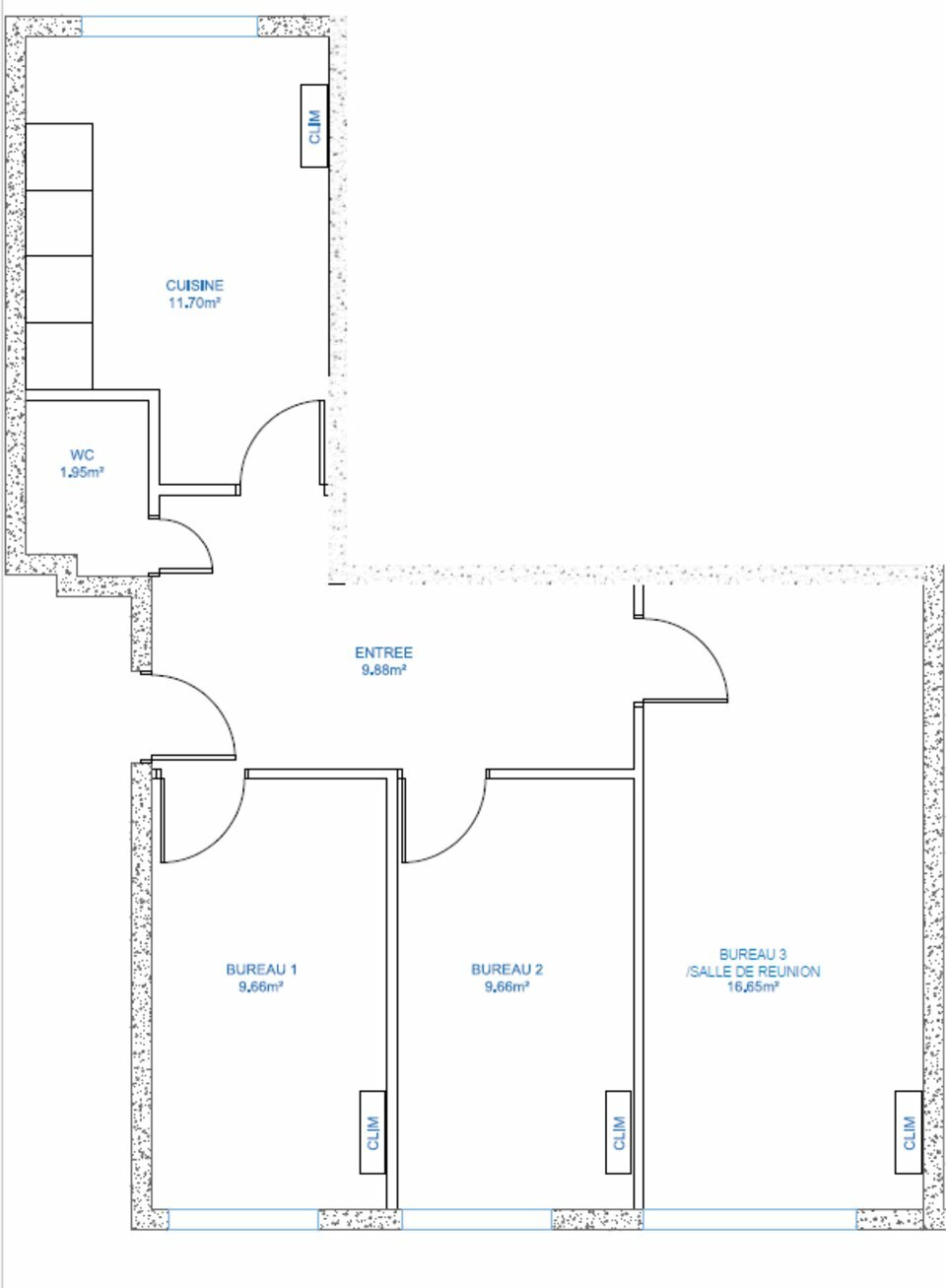
A louer bureaux situés dans la zone industrielle de Saint Laurent du Var. Surface: 60 m². 1er étage avec un accès par escaliers. 1 entrée. 2 bureaux. 1 salle de réunion. Coin cuisine. Sanitaires. Climatisation. Très bon état général. Stationnement aisé dans la zone. Loyer CC: 886 Euros/mois. Possibilité de louer un bureau de 15 m² en sus (180 Euros/mois)


DPE En cours

Les informations sur les risques auxquels ce bien est exposé sont disponibles sur le site Géorisques : www.georisques.gouv.fr

Informations financières

  • Loyer annuel :

  • Taxe foncière :

  • Honoraires :

  • 9.600 Euros/an HC

  • 860 Euros/an

  • 1.920 Euros HT à la charge du preneur

Surfaces proposées

Surface totale de 60 m²

Consommation énergétique

DPE : En cours de réalisation.

Offres similaires

Surface totale 20 m² - Dispo. Immédiate

BUREAUX

06700, SAINT LAURENT DU VAR

000X839222

Surface totale 88 m² - Dispo. Immédiate

BUREAUX

06700, SAINT LAURENT DU VAR

06_000287

Surface totale 50 m² - Dispo. Immédiate

BUREAUX

06700, SAINT LAURENT DU VAR

06_0146