logo-locauxrama

Bureaux à Louer de 4.625m² à Valbonne - Réf. 000X839457

Présenté par AZUREA COMMERCES & ENTREPRISES

1.062.514€ /an HTHC

Touchez l'image pour voir tous les visuels

Description

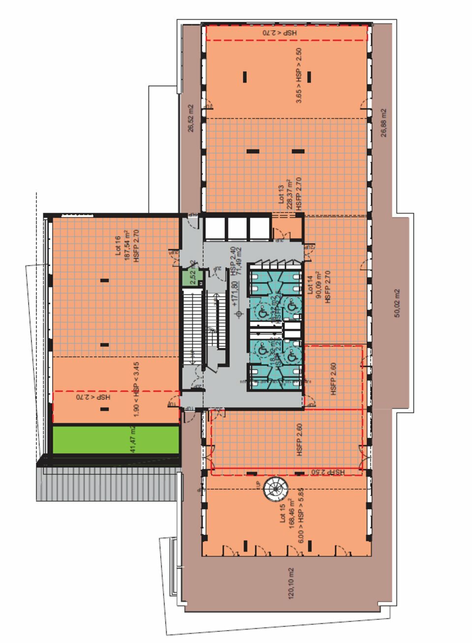
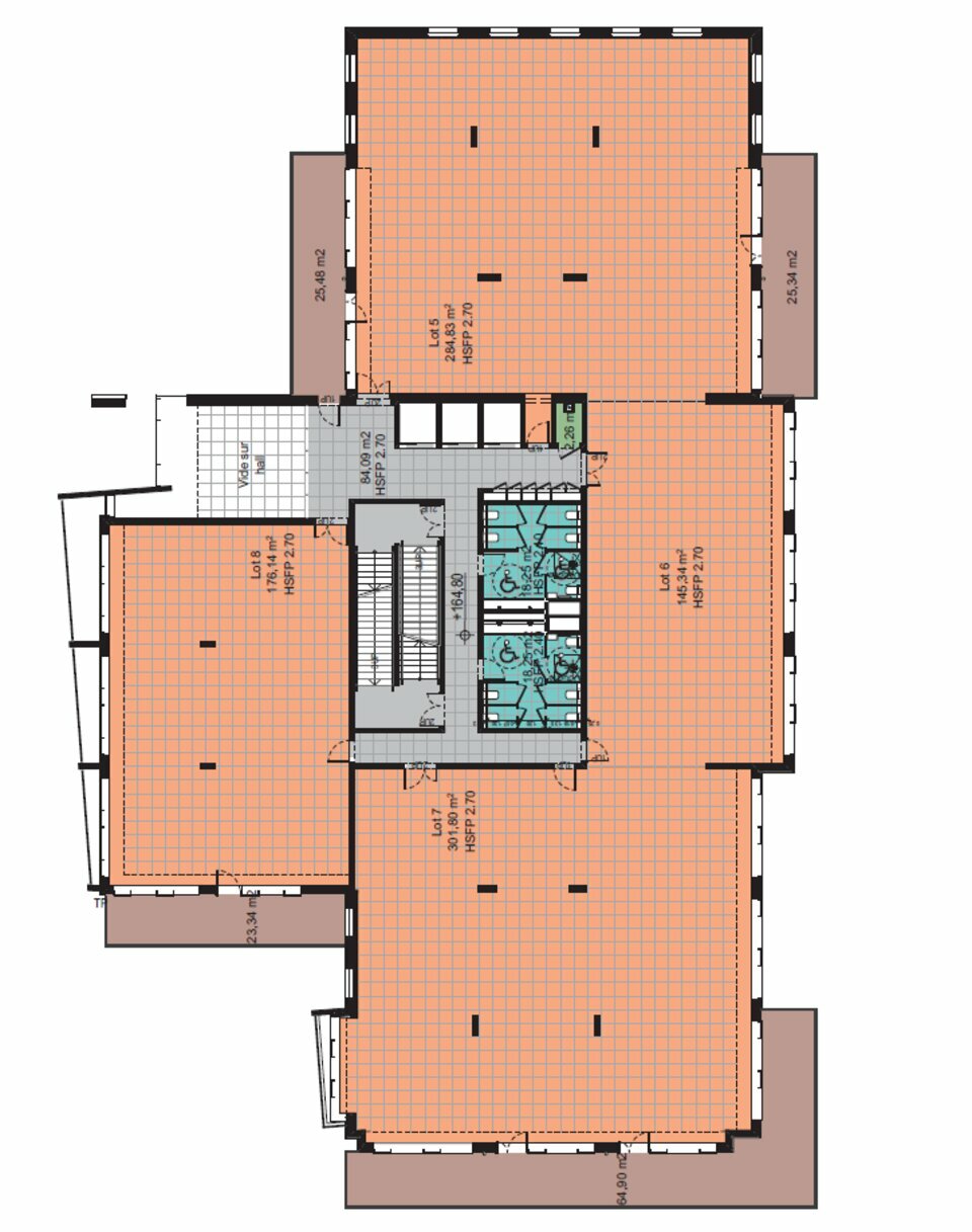
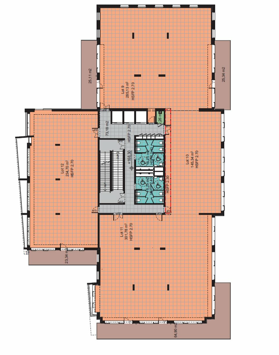
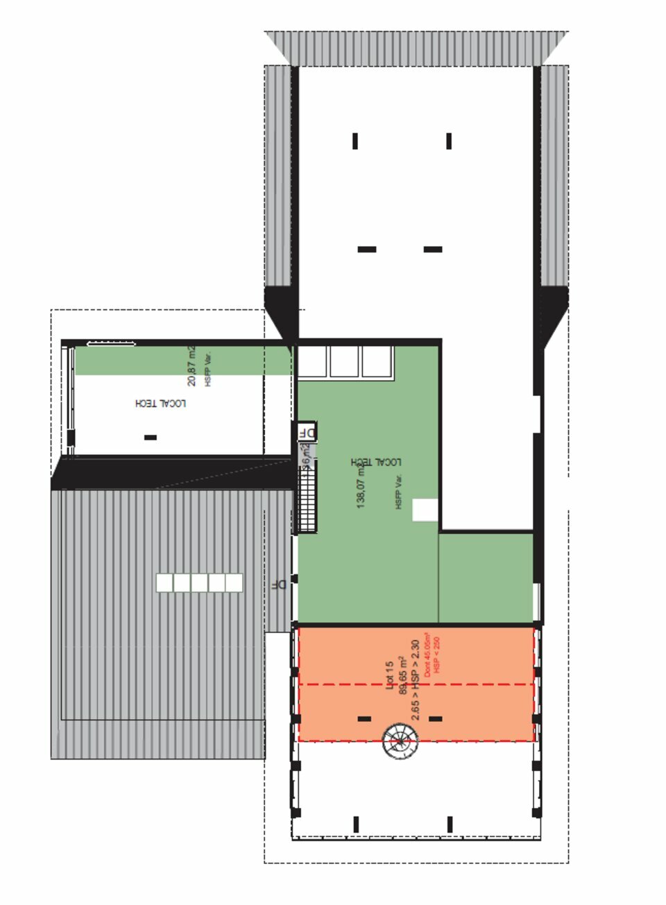
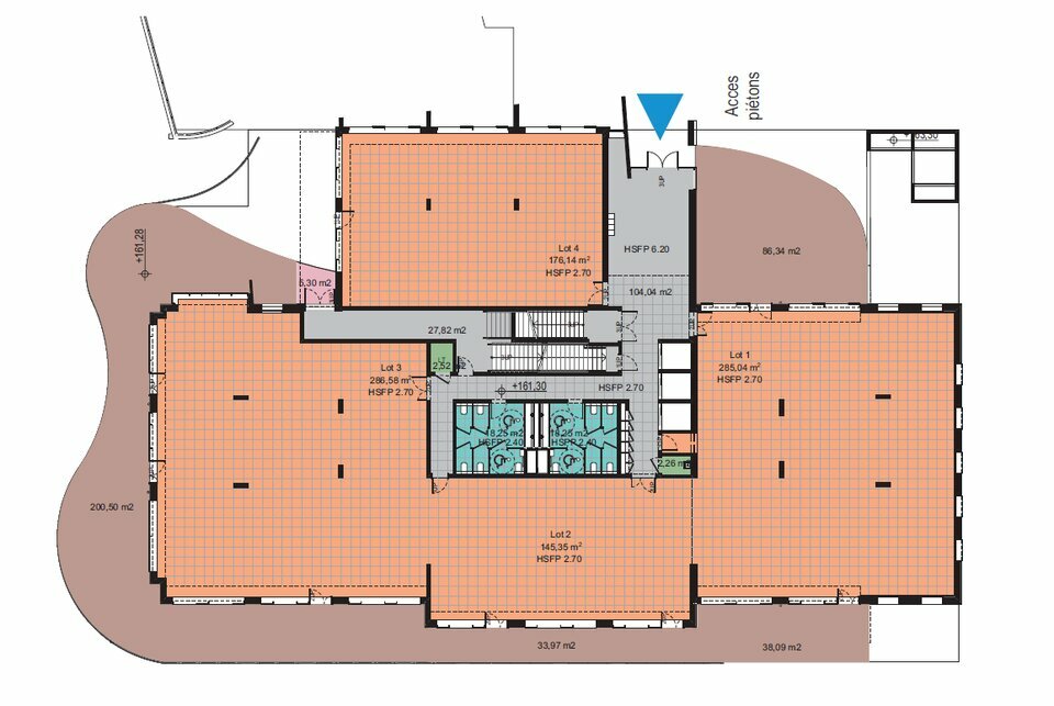
A louer immeuble indépendant à usage de bureaux idéalement situés dans la technopole de Sophia Antipolis à Valbonne, à proximité de la route des Lucioles. Surface: 4625,09 m² sur 4 niveaux. Bâtiment récent aux normes PMR, ERP et écoresponsable labélisé BREEAM. Sanitaires et douches. Climatisation réversible. Fibre optique. Prises RJ45. Grandes terrasses à chaque niveau. Double vitrage acoustique. Panneaux photovoltaïques en toiture. Belles prestations. Grand parking extérieur visiteur, 60 stationnements pour les motos et vélos. Loués avec 142 places de parking privées. Loyer CC: 88 542,80 Euros HT/mois. Autres surfaces possibles: de 90,09 m² à 4625 m²


DPE En cours

Les informations sur les risques auxquels ce bien est exposé sont disponibles sur le site Géorisques : www.georisques.gouv.fr

Informations financières

  • Loyer annuel :

  • Taxe foncière :

  • Honoraires :

  • 1.062.514 Euros/an HTHC

  • 35.022 Euros/an

  • 159.377 Euros HT à la charge du preneur

Surfaces proposées

Surface totale de 4625 m²

Consommation énergétique

DPE : En cours de réalisation.

Offres similaires

De 288 m² à 651 m² - Dispo. Immédiate

BUREAUX

06560, SOPHIA ANTIPOLIS

06_1666

De 500 m² à 7211 m² - Dispo. FIN 2026

BUREAUX

06560, SOPHIA ANTIPOLIS

06_2917

Surface totale 300 m² - Dispo. Immédiate

BUREAUX

06560, VALBONNE

06_0905