logo-locauxrama

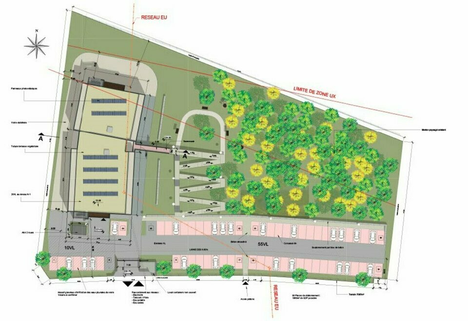
Terrain à Vendre de 14.191m² à Viriat - Réf. 01.0336

Présenté par ORPI VIP BUSINESS

1.561.010€ HT

Description

Votre agence VIP BUSINESS OrpiPro vous propose à la vente futur terrain situé dans une zone d'activités dynamique, proche des grands axes.

Surfaces adaptables en fonction de l'activité et des besoins en parkings. Le terrain sera viabilisé après conclusion des ventes.

contact : Pierre ECOCHARD, Conseiller pro, 07 63 53 74 16

Honoraires agence: 4% HT en sus du prix de vente à charge acquéreur


DPE Non requis

Les informations sur les risques auxquels ce bien est exposé sont disponibles sur le site Géorisques : www.georisques.gouv.fr

Informations financières

  • Prix de vente :

  • Honoraires :

  • 1.561.010 Euros HT

  • Nous consulter

Surfaces proposées

Surface totale de 14191 m²

Accès routiers

Autoroute à 5 minutes

Desserte transports

Gare TGV à 15 minutes

Consommation énergétique

DPE : En cours de réalisation.

Offres similaires

De 5000 m² à 20000 m² - Dispo. Immédiate

TERRAIN

01150, SAINT VULBAS

01_0018

Surface totale 3000 m² - Dispo. Immédiate

TERRAIN

01150, SAINT VULBAS

01_0229

De 3000 m² à 1600000 m² - Dispo. Immédiate

TERRAIN

01150, SAINT-VULBAS

01_0016