logo-locauxrama

Local d'activite à Louer de 700m² à Chartres - Réf. 036L840187

Présenté par ANTAE IMMOBILIER

36.000€ /an HTHC

Touchez l'image pour voir tous les visuels

Description

À LOUER LOCAL D'ACTIVITÉ - CHARTRES AGGLOMÉRATION

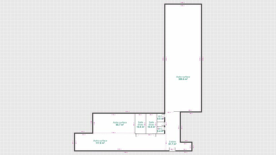
Local d'activité d'environ 700 m² situé dans un ensemble immobilier mixte, combinant activités commerciales et de loisirs.

Le local comprend :

  • Deux espaces principaux d'environ 300 m² et 185 m²

  • Un accueil

  • Sanitaires et douches

Le bien est fonctionnel et adapté à différents types d'activités professionnelles.


DPE En cours

Les informations sur les risques auxquels ce bien est exposé sont disponibles sur le site Géorisques : www.georisques.gouv.fr

Informations financières

  • Loyer annuel :

  • Honoraires :

  • 36.000 Euros/an HTHC

  • 30 % HT à la charge du preneur

Surfaces proposées

Surface totale de 700 m²

Consommation énergétique

DPE : En cours de réalisation.

Offres similaires

Surface totale 323 m² - Dispo. Immédiate

LOCAL D'ACTIVITE

28000, CHARTRES

036L840504

Surface totale 324 m² - Dispo. Immédiate

LOCAL D'ACTIVITE

28000, CHARTRES

036L840505

Surface totale 2076 m² - Dispo. Immédiate

LOCAL D'ACTIVITE

28000, CHARTRES

036L840519