logo-locauxrama

Local commercial à Louer de 980m² à Cusset - Réf. 03.0290

Présenté par SRI

118.235€ /an HT

Touchez l'image pour voir tous les visuels

Description

Notre agence spécialisée en immobilier d'entreprise vous propose une opportunité rare sur un secteur dynamique de Cusset :

Un local commercial neuf bénéficiant d'une excellente visibilité en bord de route.

Un actif idéal pour développer votre activité dans un environnement à fort passage.

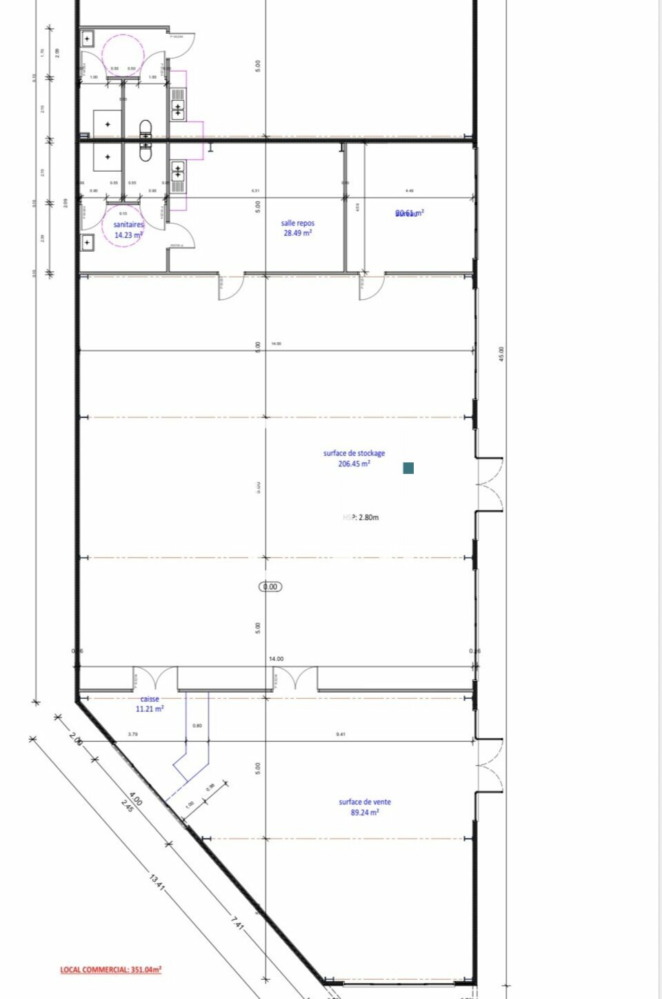
SURFACES DISPONIBLES :

  • Espace commercial (façade) : 100,45 m² → 150 Euros / m²

  • Zone stockage : 269,78 m² → 100 Euros / m²

  • Bureaux : 306,76 m² → 120 Euros / m²

  • Entrepôt (arrière) : 302,91 m² → 130 Euros / m²

Surface totale : 979,90 m²

LES + DU BIEN :

Produit neuf aucun travaux à prévoir
Emplacement stratégique forte visibilité et flux passant
Accessibilité optimale
Modularité complète division possible
Aménagement sur-mesure envisageable
Conditions financières ajustables selon projet

POUR QUI ?

Enseigne commerciale recherchant visibilité
Activité avec besoin de stockage, bureaux et surface de vente

INFORMATIONS ET VISITE :

Dossier complet, plans et accompagnement personnalisé disponibles sur demande.

Contactez nous dès maintenant pour étudier votre projet.

Retrouvez l'ensemble de nos biens sur notre site SRI et créez vos alertes personnalisées.


DPE En cours

Les informations sur les risques auxquels ce bien est exposé sont disponibles sur le site Géorisques : www.georisques.gouv.fr

Informations financières

  • Loyer annuel :

  • Honoraires :

  • 118.235 Euros/an HT

  • Nous consulter

Surfaces proposées

Surface totale de 980 m²

Accès routiers

- Autoroute : A71 (Orléans Clermont-Ferrand)

- Vichy - supérieur à Paris :3h (Intercités)

- Vichy - supérieur à Lyon : 2h (TER)

- Vichy - supérieur à Poitiers :30 min (TER)

Desserte transports

Bus : 8 lignes (Mobivie)
Train : Gare de Vichy (Intercités, TER)

Consommation énergétique

DPE : En cours de réalisation.

Offres similaires

Surface totale 1216 m² - Dispo. Janvier 2025

LOCAL COMMERCIAL

03300, CUSSET

03_0363

De 145 m² à 290 m² - Dispo. Immédiate

LOCAL COMMERCIAL

03300, CUSSET

03_0015

De 140 m² à 420 m² - Dispo. Immédiate

LOCAL COMMERCIAL

03300, CUSSET

03_0279