logo-locauxrama

Local commercial à Vendre à partir de 116m² à Colombelles - Réf. 14.000020

Présenté par PROLOCAUX

201.996€ HT
prix de la surface minimum

Touchez l'image pour voir tous les visuels

Description

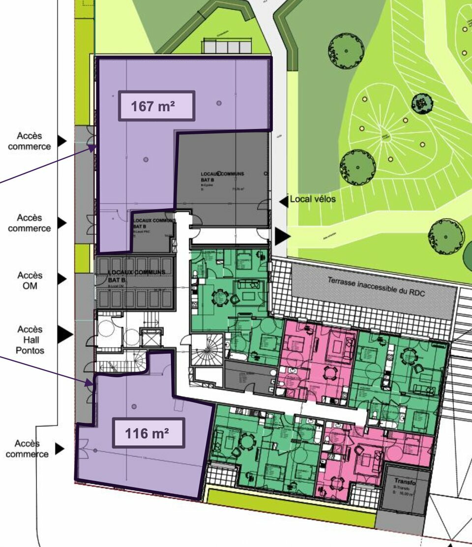
Au sein d'un programme neuf en cours de construction, deux cellules commerciales vendues en VEFA, situées dans un environnement en plein développement à proximité immédiate des axes principaux.

Surface totale possible d'environ 283 m², divisible à partir de 116 m².
Deux surfaces disponibles : 167 m² et 116 m².
Il est encore possible de fusionner les deux locaux pour former un seul espace en modifiant l'implantation du local vélos.

Les cellules sont situées en rez-de-chaussée d'un ensemble immobilier neuf à usage mixte.

Ces locaux vous sont proposés à la vente par PROLOCAUX.


DPE En cours
Sofia OLIVEIRA, agent commercial PROLOCAUX - inscrite au RSAC d'EVREUX sour le numéro 838 485 571

Les informations sur les risques auxquels ce bien est exposé sont disponibles sur le site Géorisques : www.georisques.gouv.fr

Informations financières

  • Prix de vente surface minimum :

  • Honoraires :

  • 201.996 Euros HT (1.741 Euros/m2 HT)

  • 8 % HT à la charge de l'acquéreur

Surfaces proposées

Surface totale de 283 m²

Consommation énergétique

DPE : En cours de réalisation.

Offres similaires

Surface totale 177 m² - Dispo. Début 2027

LOCAL COMMERCIAL

14000, CAEN

14_31010

Surface totale 3313 m² - Dispo. Immédiate

LOCAL COMMERCIAL

14120, MONDEVILLE

14_040324

Surface totale 266 m² - Dispo. Début 2027

LOCAL COMMERCIAL

14000, CAEN

14_040123