logo-locauxrama

Bureaux à Louer de 58m² à La Rochelle - Réf. 17.0330

Présenté par ORPI IMMTIM CABINET CHANDEAU

18.000€ /an HT

Touchez l'image pour voir tous les visuels

Description

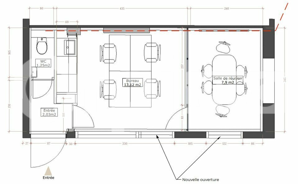
EN EXCLUSIVITE, à La Rochelle sur avenue très passante, un local commercial de 62 m² environ à louer,

  • proximité immédiate de la gare TGV et du vieux port
  • Un open-space,
  • deux bureaux,
  • kitchenette et WC.
  • Grande vitrine de 10 ml sur rue.
  • Pas de restauration
  • Libre à signature.

Loyer annuel 18000 Euros + CC et TF.

Honoraires agence et bail notarié à charge preneur.


DPE En cours

Les informations sur les risques auxquels ce bien est exposé sont disponibles sur le site Géorisques : www.georisques.gouv.fr

Informations financières

  • Loyer annuel :

  • Taxe foncière :

  • Honoraires :

  • 18.000 Euros/an HT

  • 1.164 Euros/an

  • 25 % HT à la charge du preneur

Surfaces proposées

Surface totale de 58 m²
Linéaire façade de 5ml

Consommation énergétique

DPE : En cours de réalisation.

Offres similaires

Surface totale 64 m² - Dispo. Immédiate

BUREAUX

17000, LA ROCHELLE

17_0403

Surface totale 32 m² - Dispo. IMMEDIATE

BUREAUX

17000, LA ROCHELLE

17_0311

Surface totale 165 m² - Dispo. A SIGNATURE

BUREAUX

17000, LA ROCHELLE

17_0284