logo-locauxrama

Local commercial à Louer de 800m² à Nimes - Réf. 30.0081

Présenté par NORMAN TAYLOR MONTPELLIER

84.000€ /an HTHC

Touchez l'image pour voir tous les visuels

Description

NIMES AXE PASSANT

Norman Taylor vous propose à la location, ce local commercial sur une des avenues permettant l'accession au centre-ville.

Caractéristiques et bénéfices du local :

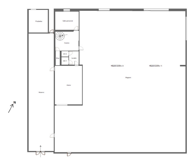
  • Surface totale : 800 m² environ en rez-de-chaussée
  • Etat du local : en bon état, réaménagement à prévoir selon activité
  • Visibilité : linéaire vitrine important donnant sur un axe passant (environ 9000 véhicules/jour)

Informations supplémentaires :

  • Stationnement : parking privé et cloturé d'environ 15/20 places sur une parcelle d'environ 1500 m²
  • Environnement : Zone commerciale proche du Carrefour avec prédominance automobile

Idéal pour : enseigne nationale, grand restaurant, pharmacie, loisir, etc.


DPE En cours

Les informations sur les risques auxquels ce bien est exposé sont disponibles sur le site Géorisques : www.georisques.gouv.fr

Informations financières

  • Loyer annuel :

  • Taxe foncière :

  • Honoraires :

  • 84.000 Euros/an HTHC

  • 8.474 Euros/an

  • 15 % HT à la charge du preneur

Surfaces proposées


TypeSurfaceLoyer annuel
Locaux commerciaux 800 m² 84 000 Euros HT/HC

Consommation énergétique

DPE : En cours de réalisation.

Offres similaires

Surface totale 835 m² - Dispo. Immédiate

LOCAL COMMERCIAL

30000, NIMES

LR_AT51876

Surface totale 305 m² - Dispo. Immédiate

LOCAL COMMERCIAL

30000, NIMES

30_000425

Surface totale 1140 m² - Dispo. Immédiate

LOCAL COMMERCIAL

30900, NIMES

30_002637