logo-locauxrama

Bureaux à Louer de 330m² à Toulouse - Réf. 31.001497

Présenté par VALTEOS TOULOUSE

79.200€ /an HT

Touchez l'image pour voir tous les visuels

Description

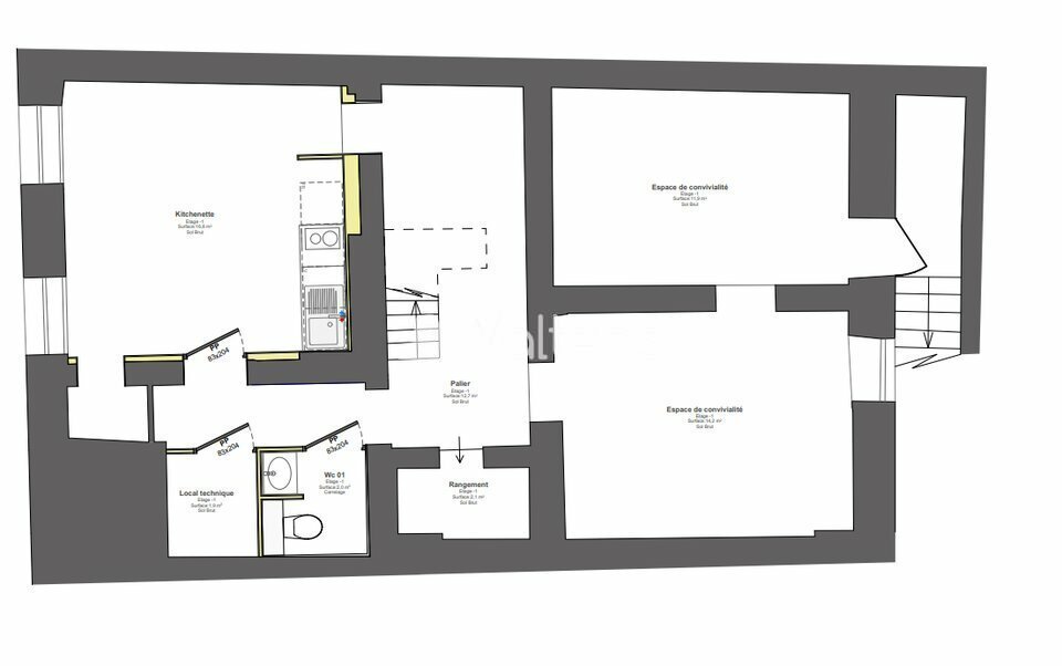
Valteos vous propose à la location un immeuble indépendant en plein coeur de Toulouse, offrant 330 m² de bureaux répartis sur 4 niveaux. Entièrement rénové.


DPE En cours

Les informations sur les risques auxquels ce bien est exposé sont disponibles sur le site Géorisques : www.georisques.gouv.fr

Informations financières

  • Loyer annuel :

  • Taxe foncière :

  • Honoraires :

  • 79.200 Euros/an HT

  • 4.000 Euros/an

  • 15 % HT à la charge du preneur

Surfaces proposées


TypeSurfaceLoyer annuelDisponibilité
Bureaux330 m²79.200 Euros HC-HTimmédiate

Desserte transports

Métro: station Jean Jaurès (lignes et A & B)
Nombreuses lignes de bus

Consommation énergétique

DPE : En cours de réalisation.

Offres similaires

Surface totale 230 m² - Dispo. Immédiate

BUREAUX

31000, TOULOUSE

31_001496

Surface totale 499 m² - Dispo. Immédiate

BUREAUX

31000, TOULOUSE

31_2689

Surface totale 118 m² - Dispo. Immédiate

BUREAUX

31200, TOULOUSE

B313992