logo-locauxrama

Local commercial à Louer de 70m² à La Teste-de-buch - Réf. 33.1143

Présenté par CONSULTIMO

14.980€ /an

Touchez l'image pour voir tous les visuels

Description

L'agence Consultimo vous propose en exclusivité à la location des locaux commerciaux en RDC et bureaux en R+1 idéalement situé Boulevard Curepipe, en face du port et à 3 minutes à pied de la gare de La Teste de Buch.

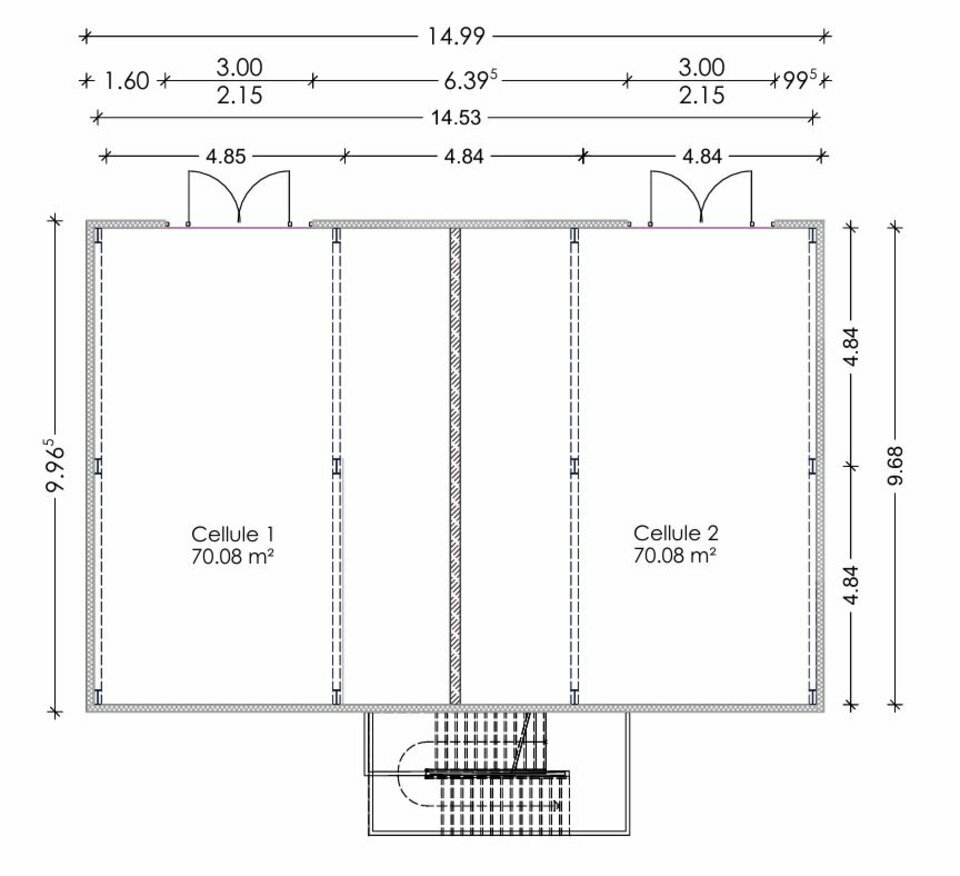
Le RDC totalise 140 m² de surface commerciale divisible à partir de 70 m². Chaque lot bénéficie d'une vitrine avec entrée indépendante. Les prestations de livraison sont les suivantes : luminaire, faux plafond, cloisons périphériques, un wc + point d'eau, prises périphériques avec RJ, dalle brute avec bouche pore

Conditions financières pour un lot de 70m²

  • Loyer mensuel HT/HC : 1.250 Euros
  • Provision sur charges HT : 50 Euros/mois
  • Provision taxe foncière : Pas de taxe foncière sur la première année + provision de 60 Euros HT/mois
  • Dépôt de garantie : 2 mois de loyer
  • Paiement mensuel et d'avance
  • Honoraire de commercialisation : 3.750 Euros HT à la charge du Preneur

Disponible 12 mois après accord.

Accueil téléphonique du lundi au samedi de 8h à 19h. #RV


DPE En cours

Les informations sur les risques auxquels ce bien est exposé sont disponibles sur le site Géorisques : www.georisques.gouv.fr

Informations financières

  • Loyer annuel :

  • 14.980 Euros/an

Surfaces proposées

Surface totale de 70 m²

Consommation énergétique

DPE : En cours de réalisation.

Offres similaires

Surface totale 240 m² - Dispo. Fin octobre 2024

LOCAL COMMERCIAL

33260, LA TESTE DE BUCH

33_0128

De 446 m² à 2316 m² - Dispo. Immédiate

LOCAL COMMERCIAL

33260, LA TESTE DE BUCH

LR_B52015

Surface totale 56 m² - Dispo. Immédiate

LOCAL COMMERCIAL

33260, LA TESTE DE BUCH

33_0314