logo-locauxrama

Local d'activite à Vendre de 1.227m² à Sete - Réf. 34.1571

Présenté par TOURNY MEYER MONTPELLIER

2.524.044€ HT HC

Touchez l'image pour voir tous les visuels

Description

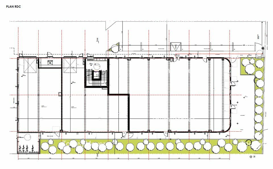
Tourny Meyer vous propose à la vente, dans un bâtiment mixte moderne, alliant espaces d'activités et bureaux

  • 3 Locaux d'activité de 175 à 469 m²
  • 3 plateaux de bureaux à l'étage de 103 à 140 m² (Regroupement possible jusqu'à 405 m² R+1)
  • Modularité selon vos besoins : possibilité de relier les dépôts du RDC aux bureaux

DPE En cours

Les informations sur les risques auxquels ce bien est exposé sont disponibles sur le site Géorisques : www.georisques.gouv.fr

Informations financières

  • Prix de vente :

  • Taxe foncière :

  • Honoraires :

  • 2.524.044 Euros HT HC

  • 18.411 Euros/an

  • 3 % HT à la charge de l'acquéreur

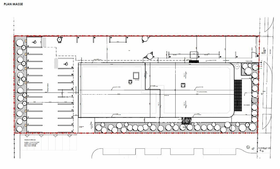
Surfaces proposées

Réunion des locaux d'activité avec les bureaux de l'étage techniquement possible via un escalier intérieur sur demande

33 parkings extérieurs

NIVEAULOTSURFACE du LOT SURFACE TOTALEPRIX LOT (Euros HT/HC/m²)PRIX LOT HT hors parkingNombre de parkingsPRIX LOT HT avec parking
RDC- LOCAUX ACTIVITÉS1167,79 m²174,7 m²1 690 Euros295 226 Euros2309 226,10 Euros
RDC- LOCAUX ACTIVITÉS2191,01 m²198,8 m²1 690 Euros335 989 Euros3356 988,90 Euros
RDC- LOCAUX ACTIVITÉS3450,33 m²468,8 m² + 94,5 m² de terrasse2 403 Euros 1 126 500 Euros191 250 000 Euros
R+1 - BUREAUX4233,8 m²243,4 m²1 990 Euros484 366 Euros5519 366 Euros
R+1- BUREAUX5136,09 m²141,7 m²1 990 Euros281 963 Euros4309 963,10 Euros

Accès routiers

Bus 12 - Arrêt "ancien Pont " ou " Terminal " à 3 mins
Gare SNCF Sète à 10 mn
A709 - Sortie 33 à 8 mn

Desserte transports

Restaurants à Proximité

Consommation énergétique

DPE : En cours de réalisation.

Offres similaires

De 82 m² à 475 m² - Dispo. Immediate

LOCAL D'ACTIVITE

34200, SETE

34_000914

Surface totale 199 m² - Dispo. 4EME TRIMESTRE 2026

LOCAL D'ACTIVITE

34200, SETE

34_0622

Surface totale 175 m² - Dispo. Livraison dans 12 mois

LOCAL D'ACTIVITE

34200, SETE

LR_W54697