logo-locauxrama

Local commercial à Ceder de 95m² à Montpellier - Réf. 34.2027

Présenté par NORMAN TAYLOR MONTPELLIER

120.000€ HD

Touchez l'image pour voir tous les visuels

Description

MONTPELLIER LOCAL COMMERCIAL EMPLACEMENT N°1

Norman Taylor vous propose ce magnifique local commercial donnant sur une belle place du centre-ville de Montpellier.

Caractéristiques et bénéfices du local :

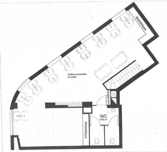
  • Surface totale : 95 m² environ décomposée comme suit : 35 m² en rez-de-chaussée, 30 m² à l'étage et 30 m² au sous-sol
  • Etat du local : très bel immeuble Haussmannien quelques travaux de rafraîchissement à prévoir en intérieur
  • Accessibilité : parking souterrain à proximité directe, tramway à quelques minutes à pied

Informations supplémentaires :

  • Terrasse : possibilité à confirmer avec la mairie
  • Environnement : haut-de-gamme avec la présence de belles enseignes nationales de prestige, étude notariale, etc.

Idéal pour : salon de thé, petite restauration

Le local n'est pas équipé d'extraction.


DPE En cours

Les informations sur les risques auxquels ce bien est exposé sont disponibles sur le site Géorisques : www.georisques.gouv.fr

Informations financières

  • Cession :

  • Loyer annuel :

  • Honoraires :

  • 120.000 Euros HD

  • 39.600 Euros/an HTHC

  • 15.000 Euros HT à la charge du cessionnaire

Surfaces proposées


TypeSurfacePrix vente droit au bail Loyer annuel
Locaux commerciaux 95 m² 120 000 Euros HD/HF39 600 Euros HT/HC

Accès routiers

Autoroute A9/A709 à 10 min

Desserte transports

Tram lignes 1 et 2 à 500 m
Tram ligne 4 à 250 m
Gare Montpellier Saint-Roch à 850 m
Gare Montpellier Sud de France à 18 min
Aéroport Montpellier Méditerranée à 18 min

Consommation énergétique

DPE : En cours de réalisation.

Offres similaires

Surface totale 30 m² - Dispo. Immédiate

LOCAL COMMERCIAL

34000, MONTPELLIER

16679M

Surface totale 82 m² - Dispo. A convenir entre les parties

LOCAL COMMERCIAL

34000, MONTPELLIER

17032M

Surface totale 139 m² - Dispo. Immédiate

LOCAL COMMERCIAL

34000, MONTPELLIER

3448218974