logo-locauxrama

Bureaux à Louer de 2.106m² à Montpellier - Réf. 34.2126

Présenté par NORMAN TAYLOR MONTPELLIER

400.140€ /an HTHC

Touchez l'image pour voir tous les visuels

Description

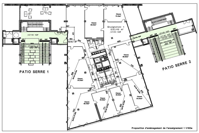
A sein de la nouvelle ZAC Cambacérès, Norman Taylor vous propose à la location, plateaux de bureaux pour y recevoir une école ou centre de formation.

Caractéristiques des locaux :

  • 2 106 m² répartit sur 2 plateaux de 867 m² et 1 239 m² de SDP
  • Locaux aménagés et non cloisonnés
  • Immeuble de bureaux respectant les normes de la RE 2020 et certifié BREEAM VERY GOOD
  • ERP de type R

Avantages supplémentaires :

  • Emplacement stratégique
  • Grandes terrasses
  • Contrôle d'accès et système de vidéosurveillance
  • Halles gourmands/food court en rdc
  • 29 places de parking dont 6 prééquipées pour y installer des bornes électriques
  • Pistes cyclables en pied d'immeuble pour rejoindre le centre historique et les plages

Ces bureaux sont idéalement situés dans un environnement dynamique et facilement accessible.

Contactez l'agence Norman Taylor pour ne pas manquer pas cette opportunité !

Loyer parking : 1 200 Euros HT/unité/an

200 Euros reversé par le bailleur sous réserve de pouvoir mettre à disposition soir et week end, 24 places


DPE En cours

Les informations sur les risques auxquels ce bien est exposé sont disponibles sur le site Géorisques : www.georisques.gouv.fr

Informations financières

  • Loyer annuel :

  • Taxe foncière :

  • Honoraires :

  • 400.140 Euros/an HTHC

  • 42.120 Euros/an

  • 15 % à la charge du preneur

Surfaces proposées


Lot Surface Loyer lot
Lot 15867 m² 164 730 Euros HT/HC
Lot 161 239 m² 235 410 Euros HT/HC

Accès routiers

Gare Saint Roch à 7 min
Gare Sud de France à 400 m
Aéroport de Montpellier à 7 min

Desserte transports

Autoroute A9 : 3 min en voiture
Aéroport de Montpellier : 5 min en voiture
Centre commercial Odysseum: 5 min en voiture
Tramway ligne 1 : à proximité immédiate

Consommation énergétique

DPE : En cours de réalisation.

Offres similaires

Surface totale 181 m² - Dispo. Immédiate

BUREAUX

34000, MONTPELLIER

LR_W52310

Surface totale 126 m² - Dispo. Immédiate

BUREAUX

34660, MONTPELLIER

34_0598

Surface totale 335 m² - Dispo. 2T2024

BUREAUX

34000, MONTPELLIER

34_1233