logo-locauxrama

Local d'activite à Louer à partir de 360m² à Beziers - Réf. 34.2152

Présenté par NORMAN TAYLOR MONTPELLIER

19.200€ /an HTHC
loyer de la surface minimum

Touchez l'image pour voir tous les visuels

Description

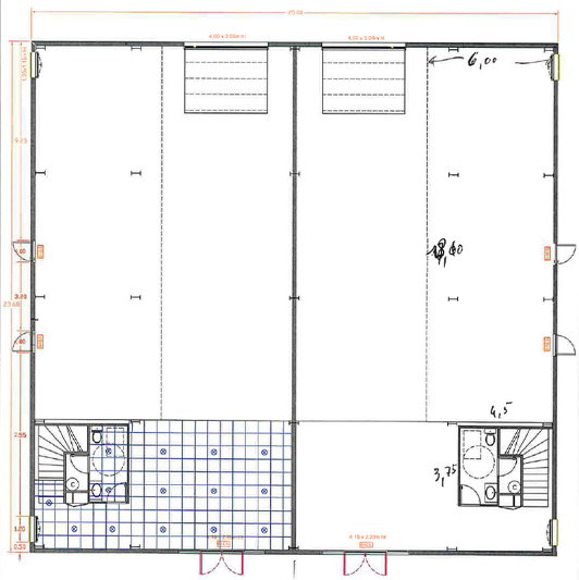
À LOUER LOCAL D'ACTIVITÉ A MARAUSSAN

Situé sur la commune de Maraussan, au sein d'une zone mixte à moins de 5min de la rocade de Béziers, bâtiment indépendant de 720 m² environ composé de deux locaux juxtaposés.

Possibilité de louer la totalité du bâtiment ou de louer un des locaux selon le descriptif ci-après :

Local d'une surface d'environ 380 m², comprenant :

  • 288 m² de dépôt

  • Un étage brut d'environ 70 m², offrant un potentiel d'aménagement en bureaux (possibilité d'aménagement selon plan avec un surloyer de 390Euros HT)

  • 2 sanitaires communs

  • 15 places de stationnement extérieures.

Ce bien conviendra parfaitement à des activités artisanales, industrielles ou de stockage.


DPE En cours

Les informations sur les risques auxquels ce bien est exposé sont disponibles sur le site Géorisques : www.georisques.gouv.fr

Informations financières

  • Loyer annuel surface minimum :

  • Taxe foncière :

  • Honoraires :

  • 19.200 Euros/an HTHC (53 Euros/m2/an HTHC)

  • 960 Euros/an

  • 20 % HT à la charge du preneur

Surfaces proposées


Batiment - LotSurfaceLoyer annuelCharges annuellesParkings
1360 m²19 200 Euros HT120 Euros15
2360 m²19 200 Euros HT120 Euros15

Consommation énergétique

DPE : En cours de réalisation.

Offres similaires

Surface totale 1320 m² - Dispo. Immédiate

LOCAL D'ACTIVITE

34500, BEZIERS

34_1572

Surface totale 105 m² - Dispo. Livraison Septembre - octobre 2025

LOCAL D'ACTIVITE

34500, BEZIERS

34_1178

De 230 m² à 495 m² - Dispo. Immédiate

LOCAL D'ACTIVITE

34500, BEZIERS

34_002560