logo-locauxrama

Bureaux à Vendre de 2.170m² à Rennes - Réf. 35.0780

Présenté par IMMOBILIERE RENNES

1.100.000€ NET VENDEUR

Touchez l'image pour voir tous les visuels

Description

L'immobilière d'entreprise vous propose à la vente ce bien situé à Cesson-Sévigné, d'une surface de 2 170 m².

Implanté en coeur de la Z.I Sud-Est, cet ensemble immobilier bénéficie d'un environnement tertiaire et d'activités particulièrement dynamique, au sein d'un secteur reconnu de la métropole rennaise.

Édifié sur une parcelle foncière de 4 125 m², le bâtiment développe :

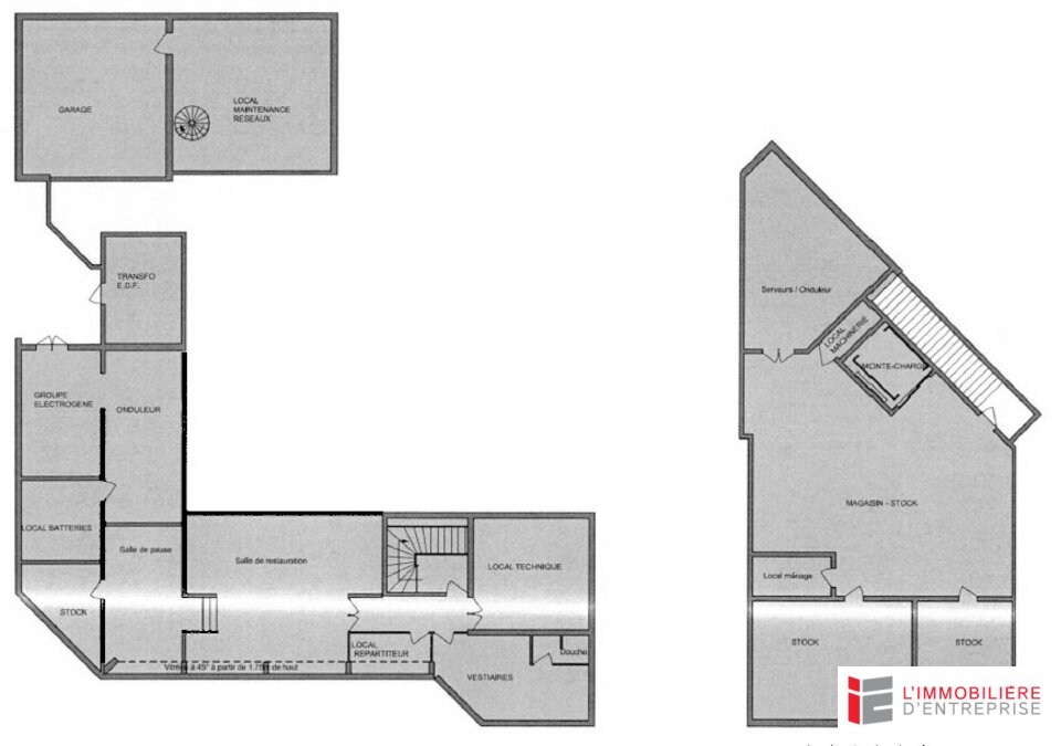
  • 577 m² de surface de plancher en sous-sol,
  • 1 148 m² en rez-de-chaussée (surfaces utiles brutes : 930 m²)
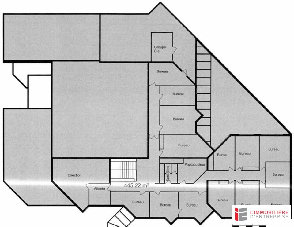
  • 445 m² au R+1 (surfaces utiles brutes : 395 m²)

l'immeuble est en très bon état, offre des espaces fonctionnels et bien répartis; et propose des bureaux cloisonnés et lumineux ainsi que des espaces de circulation confortables, adaptés à une activité tertiaire, un centre de formation, un siège d'entreprise ou toute structure nécessitant des capacités de stockage complémentaires en sous-sol.

Le site dispose de 37 places de stationnement, et un accès direct à un arrêt de bus au niveau de l'entrée du site, facilitant l'accès des collaborateurs et visiteurs.

  • Localisation : Z.I Sud-Est, CESSON-SÉVIGNÉ
  • Surface : 2 170 m²
  • Disponibilité : Immédiate

DPE En cours

Les informations sur les risques auxquels ce bien est exposé sont disponibles sur le site Géorisques : www.georisques.gouv.fr

Informations financières

  • Prix de vente :

  • Honoraires :

  • 1.100.000 Euros NET VENDEUR

  • 5 % HT à la charge de l'acquéreur

Surfaces proposées

Surface Terrain : 4125m²

EtageTypeSurface de PlancherSurface Utile
R-1 Stockage577 m²
RDCBureaux1 148 m²930 m²
R+1 bureaux :Bureaux445 m²395 m²

Consommation énergétique

DPE : En cours de réalisation.

Offres similaires

Surface totale 123 m² - Dispo. Immédiate

BUREAUX

35000, RENNES

35_006219

De 600 m² à 13291 m² - Dispo. 1T2027

BUREAUX

35000, RENNES

35_1868

Surface totale 82 m² - Dispo. A Convenir

BUREAUX

35000, RENNES

4410