logo-locauxrama

Local d'activite à Vendre de 2.195m² à Fondettes - Réf. 37.0207

Présenté par L ET A COMMERCES

2.853.500€ HT HC

Touchez l'image pour voir tous les visuels

Description

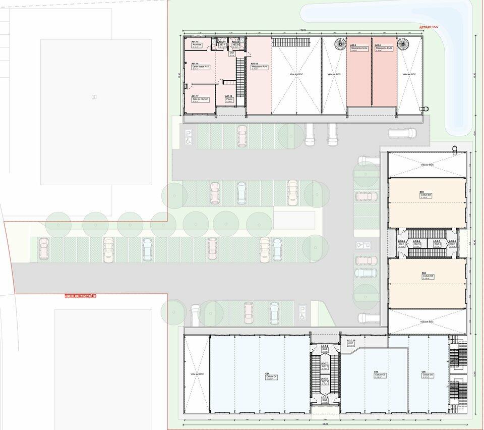
Dans un projet de développement dynamique situé au coeur de la Zone d'Activités de la Limougère à Fondettes, découvrez un ensemble de bâtiments neufs à usage mixte, idéal pour les entreprises en quête de fonctionnalité, de visibilité et de confort.

> Surface totale : 2 195 m²

=> Bâtiment B : 820 m²

> RDC : 490 m² parfait pour atelier, stockage ou showroom
> Étage : 330 m² idéal pour bureaux, salles de réunion ou espaces collaboratifs

=> Bâtiment C : 1 375 m²

> RDC : 730 m² parfait pour atelier, stockage ou showroom

> Étage : 645 m² idéal pour bureaux, salles de réunion ou espaces collaboratifs

> Terrasse : 175 m² agréable pour espaces de détente, pauses ou réceptions professionnelles

Ces bâtiments bénéficient d'un agencement modulable, permettant d'adapter les espaces à vos besoins spécifiques. Ils font partie d'un ensemble de trois bâtiments, dont deux sont proposés à la vente (B et C).

✅ Architecture moderne

✅ Environnement professionnel attractif

✅ Proximité immédiate de Tours et des grands axes


DPE En cours

Les informations sur les risques auxquels ce bien est exposé sont disponibles sur le site Géorisques : www.georisques.gouv.fr

Informations financières

  • Prix de vente :

  • 2.853.500 Euros HT HC

Surfaces proposées


Batiment - LotEtageSurface
BRDC490 m2
CRDC730 m2
BR+1330 m2
CR+1645 m2

Consommation énergétique

DPE : En cours de réalisation.

Offres similaires

Surface totale 225 m² - Dispo. Immédiate

LOCAL D'ACTIVITE

37270, MONTLOUIS SUR LOIRE

LR_V302

Surface totale 365 m² - Dispo. Immédiate

LOCAL D'ACTIVITE

37700, LA VILLE-AUX-DAMES

37_0217

Surface totale 380 m² - Dispo. Immédiate

LOCAL D'ACTIVITE

37210, PARCAY MESLAY

2469_26