logo-locauxrama

Bureaux à Vendre ou à Louer de 218m² à Saint Cyr Sur Loire - Réf. 37.0270

Présenté par WEADVISOR TOURS

Touchez l'image pour voir tous les visuels

Description

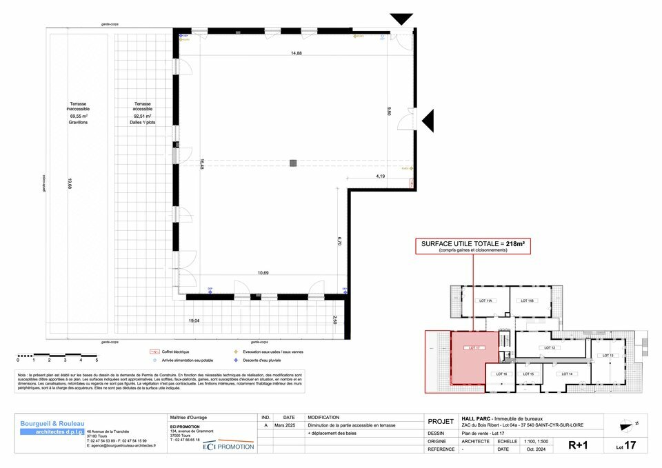
WEADVISOR Immobilier d'Entreprise vous propose des bureaux / locaux commerciaux à louer, livrés bruts, répondant aux normes PMR et ERP, dans un immeuble neuf livrable début 2026.

Idéalement situé sur la commune de Saint-Cyr-Sur-Loire, ces bureaux disposent de 4 places de parking privatives et d'une magnifique terrasse de 162 m² environ (dont 92 m² de terrasse avec dalles et 70 m² de terrasse avec gravillons).

Située au 1er étage, nous vous proposons une surface de 218 m² environ.


Retrouvez tous nos biens disponibles en immobilier d'entreprise et commercial, à la vente ou à la location sur notre site : weadvisor.fr/tours

Les informations sur les risques auxquels ce bien est exposé sont disponibles sur le site Géorisques : www.georisques.gouv.fr.


DPE En cours

Informations financières

  • Loyer annuel :

  • Honoraires :

  • 48.000 Euros/an

  • 30 % à la charge du preneur

Surfaces proposées


Batiment - LotEtageTypeSurfacePrix de vente
5RDCBalcon168 m² 388 090 Euros HT FAI
6RDCBalcon181 m² 420 415 Euros HT FAI
7RDCBalcon215 m² 496 641 Euros HT FAI
13b1er étageBalcon86,37217 312 Euros HT FAI
15 1er étage Terrasse 122 m² 284 211 Euros HT FAI
17 1er étage 218m2
232ème étageBalcon 146 m² 337 259 Euros HT FAI

Consommation énergétique

DPE : En cours de réalisation.

Offres similaires

Surface totale 74 m² - Dispo. Immédiate

BUREAUX

37540, SAINT CYR SUR LOIRE

LR_V52787

De 135 m² à 283 m² - Dispo. Immédiate

BUREAUX

37540, SAINT CYR SUR LOIRE

LR_V27158

Surface totale 107 m² - Dispo. Immédiate

BUREAUX

37540, SAINT CYR SUR LOIRE

LR_V52588