logo-locauxrama

Local d'activite à Louer de 280m² à Fitilieu - Réf. 38.000852

Présenté par PROLOCAUX

23.800€ /an HT

Touchez l'image pour voir tous les visuels

Description

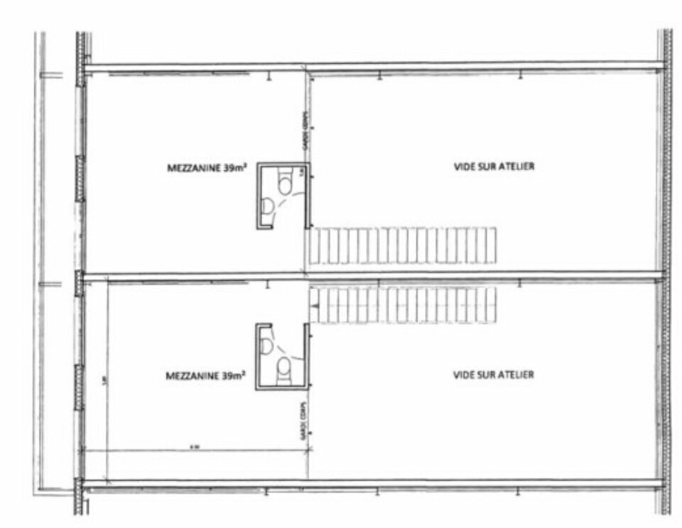
À louer locaux d'activité de 280m2 situé dans la ZI de FITILIEU - LES ABRETS.


Au sein d'un programme neuf dans un parc clôt et sécurisé.

Division possible en 2 lots : Nous consulter.


Ce bien à la location vous est proposé par PROLOCAUX


DPE En cours
Agent commercial - inscrit au RSAC de GRENOBLE sour le numéro 950 956 961

Les informations sur les risques auxquels ce bien est exposé sont disponibles sur le site Géorisques : www.georisques.gouv.fr

Informations financières

  • Loyer annuel :

  • Honoraires :

  • 23.800 Euros/an HT

  • 15 % HT à la charge du preneur

Surfaces proposées

Surface totale de 280 m²

Consommation énergétique

DPE : En cours de réalisation.

Offres similaires

De 208 m² à 1469 m² - Dispo. Fin 2026

LOCAL D'ACTIVITE

38490, FITILIEU

38_000857

Surface totale 194 m² - Dispo. Immédiate

LOCAL D'ACTIVITE

38490, AOSTE

38_0256

Surface totale 140 m² - Dispo. Décembre 2025

LOCAL D'ACTIVITE

38490, LES ABRETS

38_100863