logo-locauxrama

Bureaux à Louer à partir de 130m² à Saint Herblain - Réf. 44.0199

Présenté par LAMOTTE ENTREPRISES & COMMERCES

22.100€ /an
loyer de la surface minimum

Touchez l'image pour voir tous les visuels

Description

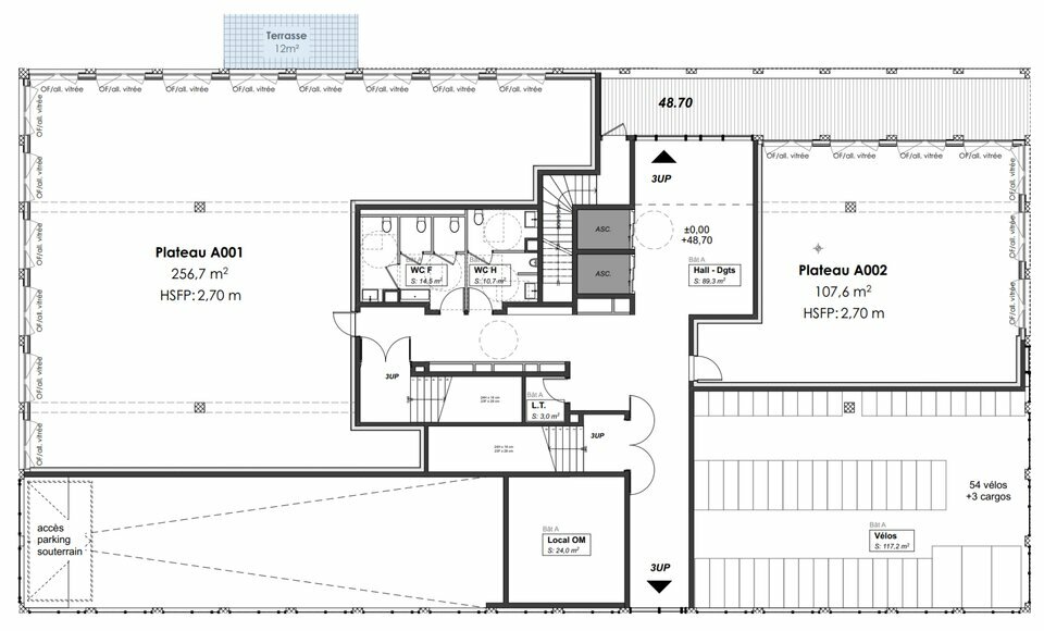
LAMOTTE ENTREPRISES & COMMERCES vous propose, au sein d'un ensemble immobilier dénommé "STATION M", composé de 4 bâtiments de bureaux pour une surface totale de 15 500 m² et de 222 stationnements, un bâtiment A d'environ 3900 m² du RDC au R+5.

51 places de stationnement en sous-sol

Locaux livrés aménagés, rafraichis, non cloisonnés.

Conforme à la règlementation environnementale RE2020

Certification visée HQE Bâtiment durable

Loyer à partir de 170 Euros HT / m² / an , stationnements en sus

Loyer unitaire stationnements : 1 000 Euros HT / stationnement / an

Livraison prévisionnelle des bâtiments A et C : 4ème trimestre 2026

REF : FG-44_0199


DPE En cours

Les informations sur les risques auxquels ce bien est exposé sont disponibles sur le site Géorisques : www.georisques.gouv.fr

Informations financières

  • Loyer annuel surface minimum :

  • 22.100 Euros/an (170 Euros/m2/an)

Surfaces proposées


LotBâtiment - EtageSurface utile (m²)Quote-part sanitaires (m²)Quote-part communs (m²)Quote-part locaux vélos (m²)Surface totale (m²)Surface extérieur (m²)
A001Bâtiment A - RDC256.7013.4130.059.14309.3012,00
A002Bâtiment A - RDC107.605.6212.603.83129.65
A101Bâtiment A - R+1341.0017.8139.9212.14410.8713.00
A102Bâtiment A - R+1258.4013.5030.259.20311.3512.90
A201Bâtiment A - R+2336.7017.5939.4111.99405.6919.80
A202Bâtiment A - R+2319.7016.7037.4211.39385.2119.80
A301Bâtiment A - R+3336.7017.5939.4111.99405.6912.50
A302Bâtiment A - R+3315.8016.5036.9711.25380.5119.70
A401Bâtiment A - R+4328.1017.1438.4111.69395.3319.80
A402Bâtiment A - R+4305.1015.9435.7110.87367.6213.00
A501Bâtiment A - R+5384.9020.1145.0613.71463.77164.60

Desserte transports

Excellente accessibilité qui permet de rejoindre toutes les capitales régionales et d'accéder facilement à l'aéroport Nantes Atlantique (15 minutes) et à la gare TGV de Nantes (30 minutes).

Accès immédiat aux périphériques Nord et Sud.

A 30 minutes en bus (C3) du centre-ville de Nantes, avec un bus toutes les 6 minutes aux heures de pointe et des horaires élargis.

Consommation énergétique

DPE : En cours de réalisation.

Offres similaires

Surface totale 548 m² - Dispo. Immédiate

BUREAUX

44800, SAINT HERBLAIN

44_2945

De 264 m² à 3687 m² - Dispo. 18 mois après accord

BUREAUX

44800, SAINT HERBLAIN

44_16339

Surface totale 191 m² - Dispo. Immédiate

BUREAUX

44800, SAINT HERBLAIN

BE2311301