logo-locauxrama

Local d'activite à Louer de 6.500m² à Nantes - Réf. 44.7243

Présenté par LOIRE OCEAN TRANSACTIONS

650.000€ /an HT

Touchez l'image pour voir tous les visuels

Description

SITE INDUSTRIEL NEUF - PROJET EN ÉTAT FUTUR D'ACHÈVEMENT - MÉTROPOLE NANTAISE

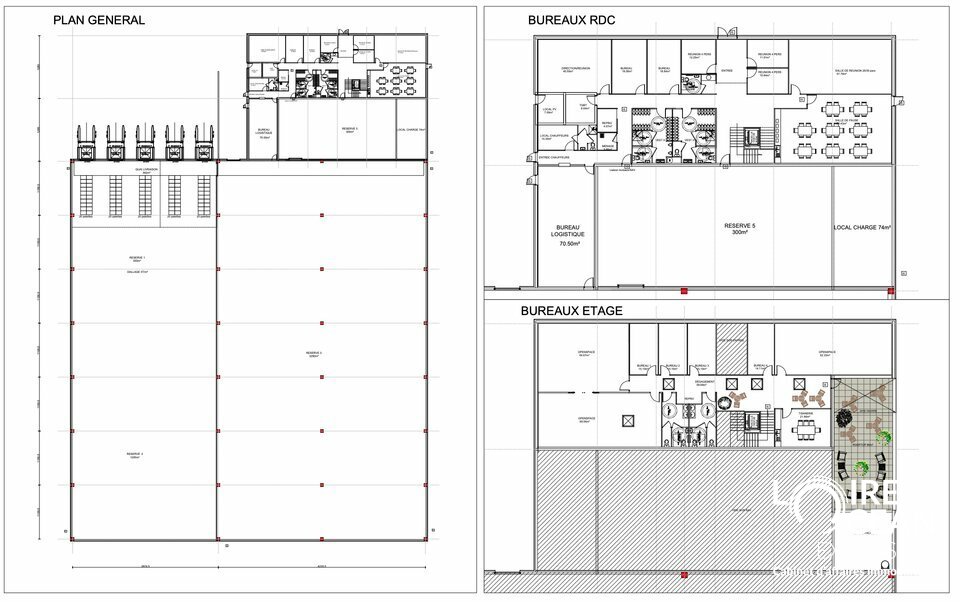
LOIRE OCÉAN EXPANSION vous propose un site industriel en État Futur d'Achèvement, idéalement situé au sein d'un pôle économique dynamique de la métropole nantaise. Ce projet, composé de deux bâtiments indépendants, offre une grande modularité pour s'adapter aux besoins des entreprises industrielles, logistiques et de production.
CARACTÉRISTIQUES DU SITE
Bâtiment A

Emprise au sol : 6 500 m²
Hauteur libre : 11,50 m | Hauteur acrotère : 14,50 m
Équipements : Bureaux sur deux étages, aire de livraison dédiée, panneaux photovoltaïques couvrant 60 % des besoins énergétiques
Usage : Activités logistiques, industrielles ou artisanales

Bâtiment B

Emprise au sol : 6 000 m²
Hauteur libre : 11,50 m | Hauteur acrotère : 14,50 m
Équipements : Bureaux sur deux étages, aire de livraison dédiée, panneaux photovoltaïques couvrant 60 % des besoins énergétiques
Usage : Activités industrielles ou de production

UN SECTEUR STRATÉGIQUE POUR LES ENTREPRISES

Implanté au sein d'un pôle d'activités reconnu de la région nantaise, le site bénéficie d'une excellente accessibilité et d'un environnement économique structuré, regroupant de nombreuses entreprises industrielles, logistiques et artisanales.
POINTS FORTS

Localisation privilégiée : Proximité immédiate des grands axes routiers et infrastructures de transport
Performance énergétique : Panneaux photovoltaïques optimisant l'autonomie énergétique
Flexibilité d'aménagement : Adaptabilité des espaces en fonction des besoins du preneur
Environnement économique favorable : Présence d'entreprises complémentaires sur le secteur

DISPONIBILITÉ

Selon commercialisation, pré-commercialisation et délais de construction.

Pour toute information complémentaire ou étude personnalisée, contactez LOIRE OCÉAN EXPANSION.
DPE En cours

Les informations sur les risques auxquels ce bien est exposé sont disponibles sur le site Géorisques : www.georisques.gouv.fr

Informations financières

  • Loyer annuel :

  • Honoraires :

  • 650.000 Euros/an HT

  • 15 % HT à la charge du preneur

Surfaces proposées

Surface totale de 6500 m²

Accès routiers

A811 direction Angers / Rennes
Périphérique EST

Desserte transports

Ligne 77

Consommation énergétique

DPE : En cours de réalisation.

Offres similaires

Surface totale 11000 m² - Dispo. A définir

LOCAL D'ACTIVITE

44000, NANTES

44_7302

Surface totale 205 m² - Dispo. 4EME TRIMESTRE 2023

LOCAL D'ACTIVITE

44300, NANTES

LC4514L

Surface totale 586 m² - Dispo. Immédiate

LOCAL D'ACTIVITE

44300, NANTES

AE240223