Présenté par SRI
Notre agence de Conseil en Immobilier d'Entreprise vous propose à la location : 1 plateau de bureaux idéalement situé en emplacement n°1 dans le quartier de La Pardieu à Clermont-Ferrand.
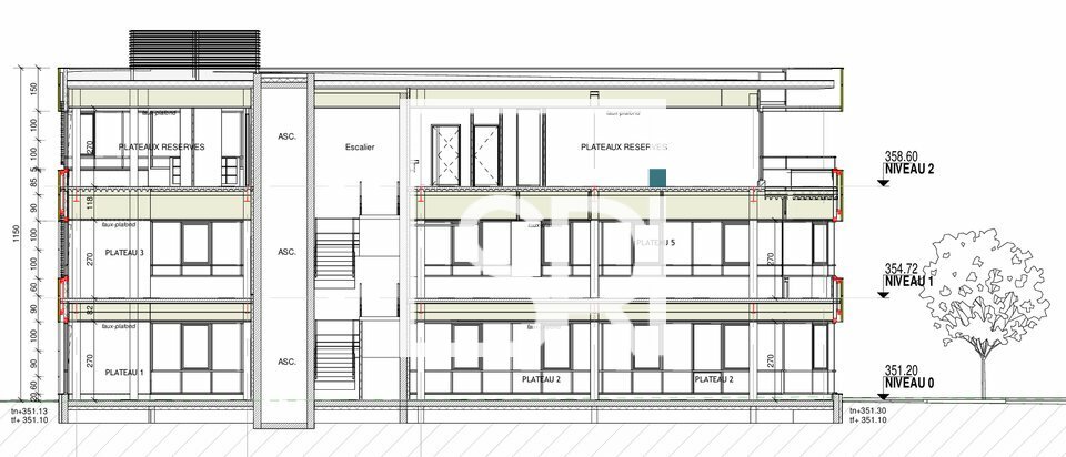
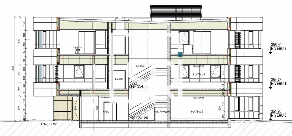
D'une surface totale d'environ 80 m² ces bureaux bénéficieront d'une installation photovoltaïque en autoconsommation collective.
Ils sont situés au coeur de la zone tertiaire de la ZAC La Pardieu à Aubière, aux portes de Clermont-Ferrand.
Possibilité de louer d'autres plateaux au choix, livrés finis, non cloisonnés, non câblés et pouvant être regroupés :
Nombreux avantages :
Retrouvez l'ensemble de nos biens sur notre site web SRI et créez vos alertes !
Nous sommes à votre écoute, à tout de suite !
Les informations sur les risques auxquels ce bien est exposé sont disponibles sur le site Géorisques : www.georisques.gouv.fr
Loyer annuel :
Taxe foncière :
Honoraires :
13.110 Euros/an HTHC
1.693 Euros/an
20 % HT à la charge du preneur
| Batiment - Lot | Etage | SUBL (Surface privative) |
| Lot 1 | RDC | 130.9 m² |
| Lot 2 | RDC | 162.9 m² |
| Lot 3 | 1er étage | 136.4 m² |
| Lot 4 | 1er étage | 77.1 m² |
| Lot 5 | 1er étage | 147.1 m² |
Accès direct A75 A71
Nombreuses lignes de bus,
Tram a 5 mn en bus.
