logo-locauxrama

Local commercial à Louer à partir de 39m² à Colmar - Réf. 68.0046

Présenté par CBRE DESAULLES COLMAR

5.441€ /an HTHC
loyer de la surface minimum

Touchez l'image pour voir tous les visuels

Description

Situé face au Centre Leclerc Orangerie, un bâtiment neuf entièrement vitré comprenant au rez-de-chaussée 2 219 m² de cellules commerciales divisibles à partir de 184 m², ainsi qu'au 1er étage 685 m² de bureaux divisibles à partir de 39 m².

Cellules livrées clos couvert et fluides en attentes, aménageables selon votre cahier des charges.

Nombreuses places de stationnement.


DPE En cours

Les informations sur les risques auxquels ce bien est exposé sont disponibles sur le site Géorisques : www.georisques.gouv.fr

Informations financières

  • Loyer annuel surface minimum :

  • Honoraires :

  • 5.441 Euros/an HTHC (140 Euros/m2/an HTHC)

  • 15 % HT à la charge du preneur

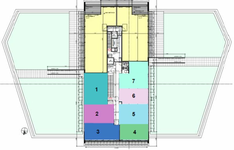
Surfaces proposées


Batiment - LotEtageTypeSurfaceLoyer annuel / m²Loyer annuelCharges annuellesDisponibilité
Lot ABRDCCommerce305170518503050Non
Lot C1RDCCommerce184140257601840Non
Lot C2RDCCommerce202140282802020Non
Lot DRDCCommerce306130397803060Oui
Lot ERDCCommerce418150627004180Non
Lot FRDCCommerce257130334102570Oui
Lot GRDCCommerce316140442403160Non
Lot HRDCCommerce231160369602310Non
Lot 1R+1Bureaux701208400700Non
Lot 2R+1Bureaux531206360530Non
Lot 3R+1Bureaux571206840570Non
Lot 4R+1Bureaux571206840570Non
Lot 5R+1Bureaux461205520460Non
Lot 6R+1Bureaux451205400450Oui
Lot 7R+1Bureaux391204680390Non
Lot 8 R+1 Bureau 164 120 196801640Non
Lot 9 R+1 Bureau 154 120 18480 1540Non

Consommation énergétique

DPE : En cours de réalisation.

Offres similaires

Surface totale 407 m² - Dispo. Immédiate

LOCAL COMMERCIAL

68000, COLMAR

67_000392

Surface totale 95 m²

LOCAL COMMERCIAL

68000, COLMAR

68_0050

Surface totale 84 m² - Dispo. Immédiate

LOCAL COMMERCIAL

68000, COLMAR

68_0116