logo-locauxrama

Bureaux à Louer à partir de 206m² à Colmar - Réf. 68.0717

Présenté par CBRE DESAULLES COLMAR

32.967€ /an HT
loyer de la surface minimum

Touchez l'image pour voir tous les visuels

Description

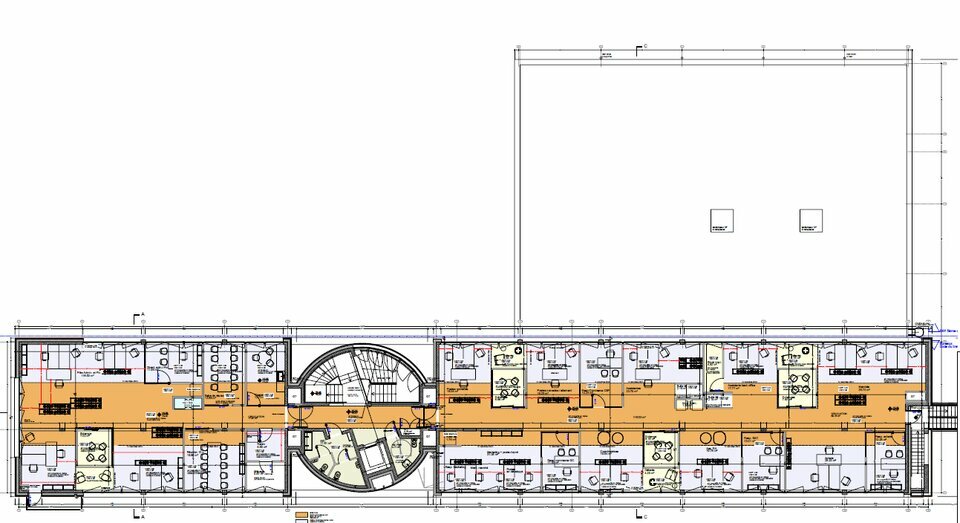
Au deuxième étage d'un bâtiment de bureaux totalement rénové en 2022, deux cellules de bureaux d'un total de 574.12 m² divisible à partir de 206.13 m². La première cellule de 367.99 m² se compose de 8 espaces de travail ouverts, de 4 bureaux individuels, d'espaces de détente et d'échanges. La seconde cellule de 206.13 m² se compose d'1 open-space, de locaux sociaux, de 2 pièces d'archives, de 2 salles de réunions, d'1 bureau individuel et d'1 espace de détente et d'échange. Le tout bénéficiant d'un accès à la Cafeteria au RDC.


DPE En cours

Les informations sur les risques auxquels ce bien est exposé sont disponibles sur le site Géorisques : www.georisques.gouv.fr

Informations financières

  • Loyer annuel surface minimum :

  • Honoraires :

  • 32.967 Euros/an HT (160 Euros/m2/an HT)

  • 15 % HT à la charge du preneur

Surfaces proposées

Surface totale de 574 m²

Consommation énergétique

DPE : En cours de réalisation.

Offres similaires

Surface totale 285 m² - Dispo. 1er DECEMRE 2025

BUREAUX

68000, COLMAR

68_0564

De 151 m² à 4674 m² - Dispo. 1er Trimestre 2025

BUREAUX

68000, COLMAR

68_0551

Surface totale 156 m² - Dispo. Immédiate

BUREAUX

68000, COLMAR

31934