logo-locauxrama

Local d'activite à Vendre de 120m² à Francheville - Réf. 69.2507

Présenté par CGI LYON

185.000€ HD HT

Touchez l'image pour voir tous les visuels

Description

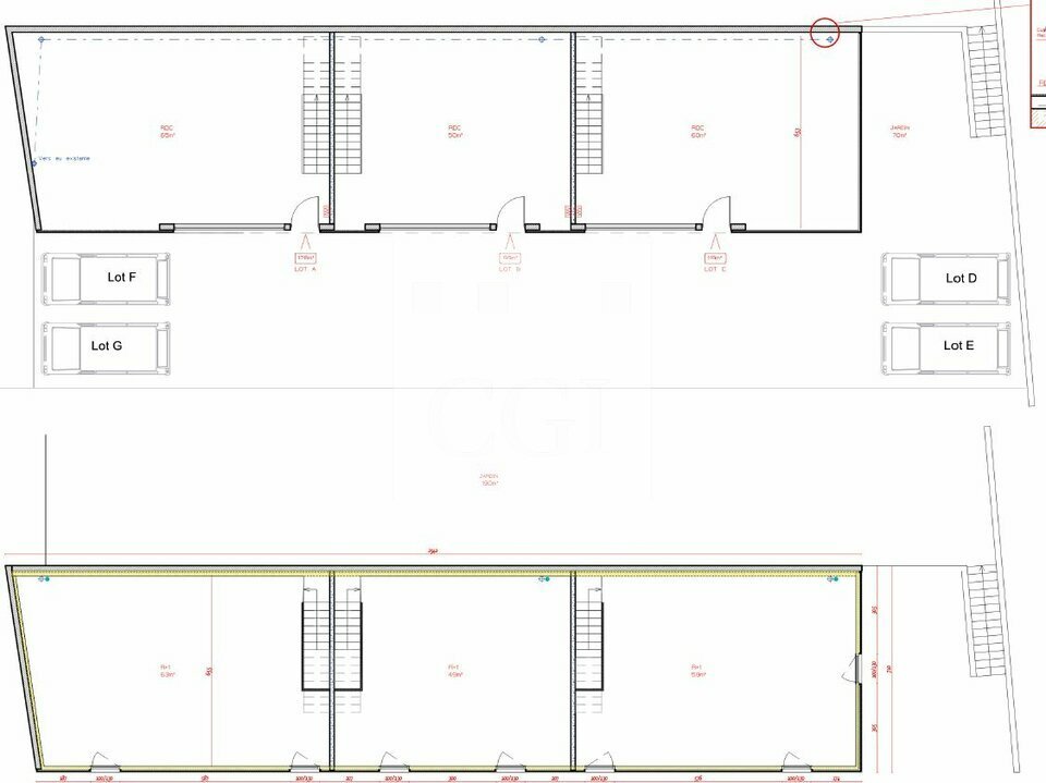
CGI REAL ESTATE LYON vous propose à la vente un local d'activités neuf d'environ 120 m², situé sur la commune de Francheville, dans un environnement en pleine expansion. Livré brut, avec fluides en attente, ce local est équipé d'une porte sectionnelle et offre un fort potentiel d'aménagement sur mesure. Idéal pour un utilisateur souhaitant concevoir un espace parfaitement adapté à ses besoins.Une opportunité rare pour implanter votre activité dans un cadre fonctionnel, personnalisable et stratégiquement situé.


DPE En cours

Les informations sur les risques auxquels ce bien est exposé sont disponibles sur le site Géorisques : www.georisques.gouv.fr

Informations financières

  • Prix de vente :

  • Honoraires :

  • 185.000 Euros HD HT

  • Nous consulter

Surfaces proposées


TypeSurfacePrix venteDisponibilité
LOCAL D'ACTIVITES60 m²
MEZZANINE60 m²185 000EurosImmédiate

Accès routiers

D342

Consommation énergétique

DPE : En cours de réalisation.

Offres similaires

Surface totale 900 m² - Dispo. Immédiate

LOCAL D'ACTIVITE

69700, GIVORS

69_2059

Surface totale 230 m² - Dispo. 1 er décembre

LOCAL D'ACTIVITE

69400, VILLEFRANCHE-SUR-SAONE

69_1720

De 137 m² à 300 m² - Dispo. 2025

LOCAL D'ACTIVITE

69460, SAINT ETIENNE LA VARENNE

69_1810