logo-locauxrama

Local d'activite à Vendre de 1.215m² à Carbon-blanc - Réf. 72320_C1

Présenté par FIKA

1.822.500€ HT

Touchez l'image pour voir tous les visuels

Description

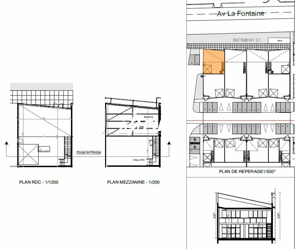
Dans le nouveau Parc d'activité de l'Estey à Carbon Blanc, 9 193 m² de surface de plancher dédiés aux activités artisanales, industrielles et commerciales répartis sur 8 bâtiments sont proposés à la vente ou à la location.

Visible de l'avenue de Lafontaine à proximité du centre commercial Sainte Eulalie, les locaux ont un accès direct à l'autoroute A10.

Chaque lot est équipé de prestations qualitatives, portes sectionnelles, mezzanines, hauteur libre 6 à 8m, dans un environnement paysager et dynamique le site bénéficie de parkings, abris vélos, de desserte interne de circulation VL et PL.

Contactez nous pour choisir votre emplacement idéal pour votre activité.

Première tranche livraison 4T 2026


DPE En cours

Les informations sur les risques auxquels ce bien est exposé sont disponibles sur le site Géorisques : www.georisques.gouv.fr

Informations financières

  • Prix de vente :

  • Honoraires :

  • 1.822.500 Euros HT

  • 5 % HT à la charge de l'acquéreur

Surfaces proposées

Bâtiment C1 X6 LOTS

Batiment - LotLOTSDPMezzanineTotal SDPPrix vente m2 HTPrix du lot HT
C11120,7661,49182,251 500,00273 375,00 Euros
C101bis120,38120,381 500,00180 570,00 Euros
C12243,2461,3304,541 500,00456 810,00 Euros
C13243,2761,3304,571 500,00456 855,00 Euros
C14120,9561,6182,551 500,00273 825,00 Euros
C104 bis120,38120,381 500,00180 570,00 Euros

Accès routiers

A10

Desserte transports

Bus : 29 31 LAMARTINE
Gare : 14 km

Consommation énergétique

DPE : En cours de réalisation.

Offres similaires

Surface totale 153 m² - Dispo. Immédiate

LOCAL D'ACTIVITE

33560, CARBON BLANC

LR_B50189

Surface totale 60 m² - Dispo. Septembre 2026

LOCAL D'ACTIVITE

33560, CARBON BLANC

LR_B54522

Surface totale 150 m² - Dispo. immédiate

LOCAL D'ACTIVITE

33560, CARBON BLANC

33_1095