logo-locauxrama

Local d'activite à Vendre de 600m² à L'union - Réf. 72358

Présenté par FIKA

900.000€ NET VENDEUR

Touchez l'image pour voir tous les visuels

Description

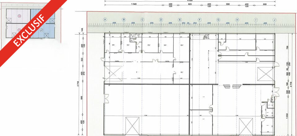
En exclusivité, cette cellule d'activité d'environ 600 m² bénéficie d'un emplacement privilégié au sein d'une zone d'activité à L'Union.

Elle offre une excellente visibilité et un positionnement stratégique à proximité immédiate de l'autoroute A68.

Il est possible de diviser ce local de 600 m² en deux cellules distinctes de 300 m² chacun ou trois cellules de 200 m², disponibles à l'acquisition. La livraison des travaux est prévue pour la fin du premier semestre 2026.

Conditions financières :

Honoraires en sus : 5 % HT à la charge de l'acquéreur


DPE En cours

Les informations sur les risques auxquels ce bien est exposé sont disponibles sur le site Géorisques : www.georisques.gouv.fr

Informations financières

  • Prix de vente :

  • Honoraires :

  • 900.000 Euros NET VENDEUR

  • Nous consulter

Surfaces proposées


SurfacePrix ventePrix vente m2Disponibilité
600 m²900 000 Euros net vendeur1500 Euros/m²Mars 2026
300 m²450 000 Euros net vendeur1500 Euros/m²Mars 2026
200 m²300 000 Euros net vendeur1500 Euros/m²Mars 2026

Consommation énergétique

DPE : En cours de réalisation.

Offres similaires

Surface totale 800 m² - Dispo. Immédiate

LOCAL D'ACTIVITE

31240, SAINT-JEAN

72291_VTE

Surface totale 300 m² - Dispo. Mars 2026

LOCAL D'ACTIVITE

31240, L'UNION

72358_VTE