logo-locauxrama

Bureaux à Vendre de 136m² à La Ravoire - Réf. 73.0305

Présenté par A-S CONSULTANTS

427.565€ HT

Touchez l'image pour voir tous les visuels

Description

A VENDRE - LA RAVOIRE (73490) - dans une résidence privée et sécurisée, de 18 lots de locaux professionnels - Le lot n°12 d'une surface de 136 m² environ - livré brut, à aménager suivant la profession - Idéal assurances, professions libérales, professions médicales - nombreux stationnements privatifs disponibles - accès PMR - ascenseur - climatisation - matériaux de qualité - standing - plans de chaque surface sur demande - réunion possible de plusieurs lots sur un même niveau ou de lots sur plusieurs étages - Très belles prestations - visibilité prémium - à voir absolument - Livraison 2026.


DPE Vierge

Les informations sur les risques auxquels ce bien est exposé sont disponibles sur le site Géorisques : www.georisques.gouv.fr

Informations financières

  • Prix de vente :

  • Honoraires :

  • 427.565 Euros HT

  • 2 % HT à la charge de l'acquéreur

Surfaces proposées

Surface totale de 136 m²

Consommation énergétique

DPE : En cours de réalisation.

Offres similaires

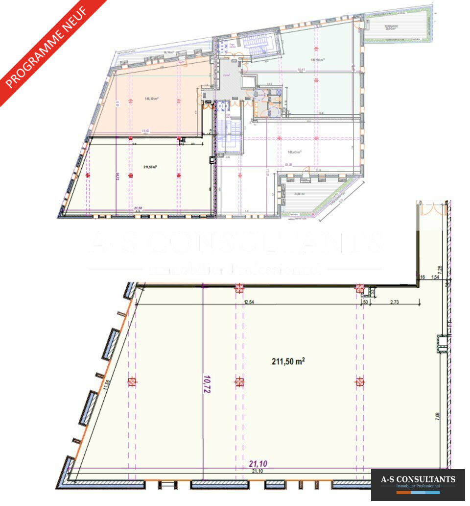
Surface totale 212 m² - Dispo. 2026

BUREAUX

73490, LA RAVOIRE

73_0307

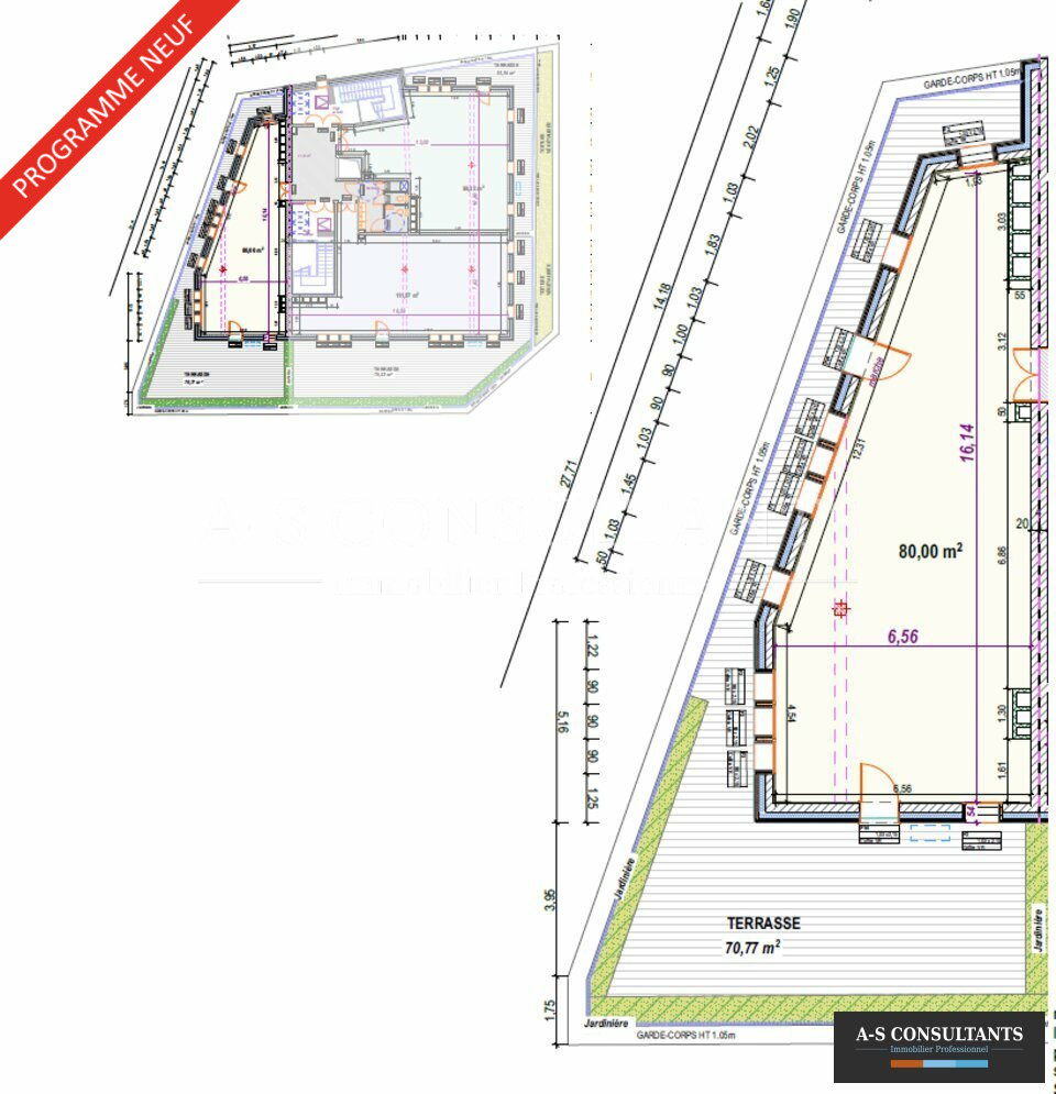
Surface totale 80 m² - Dispo. 2026

BUREAUX

73490, LA RAVOIRE

73_0304

Surface totale 162 m² - Dispo. 2026

BUREAUX

73490, LA RAVOIRE

73_0306