logo-locauxrama

Bureaux à Louer de 43m² à Paris - Réf. 75.0179

Présenté par ORPI ALJS

19.200€ /an HT

Touchez l'image pour voir tous les visuels

Description

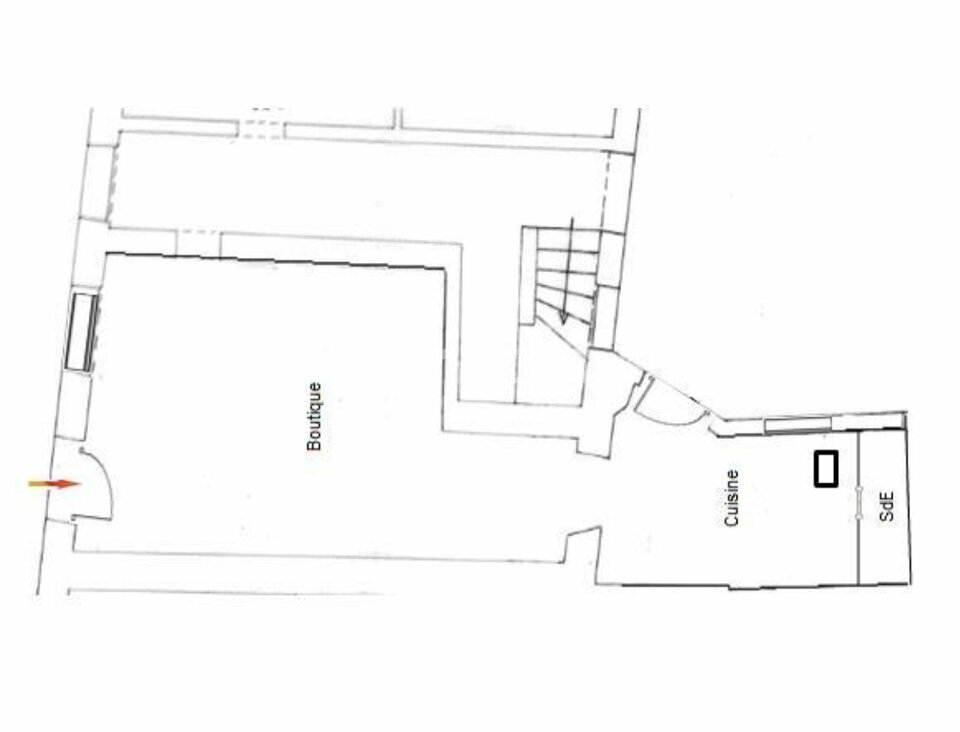
PARIS XII Avenue de St Mandé Local commercial 43 m2 idéal Bureau, profession libérale ou tout commerce sauf nuisance Loyer mensuel 1600 Euros HC + Charges 105 Euros mensuel. Bail 3/6/9 Bail précaire possible.


DPE Vierge

Les informations sur les risques auxquels ce bien est exposé sont disponibles sur le site Géorisques : www.georisques.gouv.fr

Informations financières

  • Loyer annuel :

  • Honoraires :

  • 19.200 Euros/an HT

  • 30 % HT à la charge du preneur

Surfaces proposées

Surface totale de 43 m²

Desserte transports

Metro

Consommation énergétique

DPE : En cours de réalisation.

Offres similaires

Surface totale 190 m² - Dispo. Immédiate

BUREAUX

75002, PARIS

75_5943

Surface totale 53 m² - Dispo. Immédiate

BUREAUX

75008, PARIS

75_0139

Surface totale 315 m² - Dispo. Immédiate

BUREAUX

75010, PARIS

LR_P5729