logo-locauxrama

Bureaux à Louer de 331m² à Paris - Réf. 75.5706

Présenté par ARIANE IMMOBILIER

183.705€ /an

Touchez l'image pour voir tous les visuels

Description

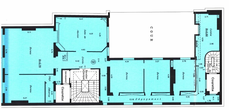
IDEALEMENT SITUE SUR L'AVENUE DE LA GRANDE ARMEE - QUARTIER ARGENTINE - AU 5ème et 6e étage EN DUPLEX, PAR ESCALIER INTERIEUR DANS UN BEL IMMEUBLE EN PIERRE DE TAILLE TRAVERSANT SUR RUE ET COUR - BUREAUX DE 330 m² (possibilité de ne louer que 180 m² en parfait état; la partie supérieure étant livrée refaite, en fonction des besoins du preneur, pour fin 2025) - 3 OPEN SPACE PLUS 9 à 11 BUREAUX - GRANDE CUISINE EQUIPEE - SALLES DE DOUCHE - WC - BALCON FILANT - GARDIEN - PROCHES DES TRANSPORTS ET DE TOUS COMMERCES - LOYER 45.000 Euros hc ht / Trimestre - HONORAIRES 54.000 Euros ht - REDACTION : 1.500 Euros ht - EdL : 1.416,66Euros ht - POSSIBILTE DE NE LOUER QUE 180m² AU 5e étage.


DPE En cours

Les informations sur les risques auxquels ce bien est exposé sont disponibles sur le site Géorisques : www.georisques.gouv.fr

Informations financières

  • Loyer annuel :

  • Taxe foncière :

  • 183.705 Euros/an

  • 3.200 Euros/an

Surfaces proposées


EtageSurfaceLoyer annuel
5180595107000
5/6330555180000

Desserte transports

- Bus Argentine (94m) - supérieur à Lignes : N11, N24, 73
- Bus Porte Maillot - Grande Armée (197m) - supérieur à Lignes : N11, N24, 73, N153
- Métro Argentine (221m)
- Bus Porte Maillot - Malakoff (307m) - supérieur à Lignes : 82
- Tram Porte Mailllot (319m) - supérieur à Lignes : T3b
- Tram Porte Maillot (323m) - supérieur à Lignes : T3b
- Bus Alphand (343m) - supérieur à Lignes : 82
- RER Neuilly - Porte Maillot (343m)
- Bus Porte Maillot - Palais des Congrès (366m) - supérieur à Lignes : 82, N11, N24, 73
- Bus Église Saint-Ferdinand (380m) - supérieur à Lignes : 43
- Bus Porte Maillot (383m)
- Métro Porte Maillot (394m)
- Bus Charles de Gaulle - Étoile - Grande Armée (480m) - supérieur à Lignes : N11, N24, 73
- Bus Étoile - Champs Élysées (494m)

Consommation énergétique

DPE : En cours de réalisation.

Offres similaires

Surface totale 75 m² - Dispo. Immédiate

BUREAUX

75013, PARIS

LR_J52583

Surface totale 72 m² - Dispo. Immédiate

BUREAUX

75017, PARIS

LR_P55197

Surface totale 90 m² - Dispo. Immédiate

BUREAUX

75009, PARIS

75_5818