logo-locauxrama

Local d'activite à Vendre de 3.191m² à Mormant - Réf. 77.001067

Présenté par ARTHUR LOYD 77-91

4.467.400€ HD HH

Touchez l'image pour voir tous les visuels

Description

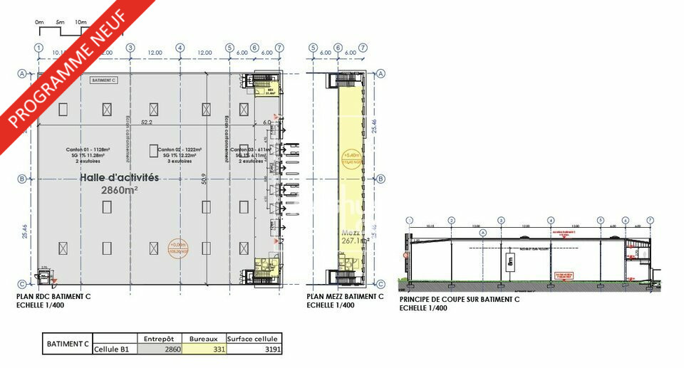
Arthur Loyd 77-91 vous propose de devenir acquéreur de ce grand actif neuf d'environ 3 191 m², dédiée à l'activité industrielle et aux bureaux, idéalement conçue pour les PME/PMI.

Ce programme est pensé pour répondre aux besoins spécifiques des entreprises en pleine croissance.

Pour plus d'informations ou pour planifier une visite, contactez Louis au 01.88.608.608

Honoraires de commercialisation à la charge de l'Acquéreur : nous consulter.


DPE Non requis

Les informations sur les risques auxquels ce bien est exposé sont disponibles sur le site Géorisques : www.georisques.gouv.fr

Informations financières

  • Prix de vente :

  • 4.467.400 Euros HD HH

Surfaces proposées

Surface Terrain : 13333m²

Batiment - LotEntrepôt BureauxSurface totale
Cellule C12 860 m²331 m²3 191 m²

Accès routiers

D619

Desserte transports

Gare de Mormant, Ligne P

Consommation énergétique

DPE : En cours de réalisation.

Offres similaires

Surface totale 2851 m² - Dispo. Immédiate

LOCAL D'ACTIVITE

77720, MORMANT

77_1715

De 90 m² à 1448 m² - Dispo. nous consulter

LOCAL D'ACTIVITE

77720, MORMANT

77_001066

Surface totale 580 m² - Dispo. Immédiate

LOCAL D'ACTIVITE

77720, MORMANT

77_001255