logo-locauxrama

Bureaux à Louer de 45m² à Brie Comte Robert - Réf. 77.0273

Présenté par ORPI LA BRIARDE GERANCE

7.320€ /an HTHC

Touchez l'image pour voir tous les visuels

Description

BRIE COMTE ROBERT (77170)

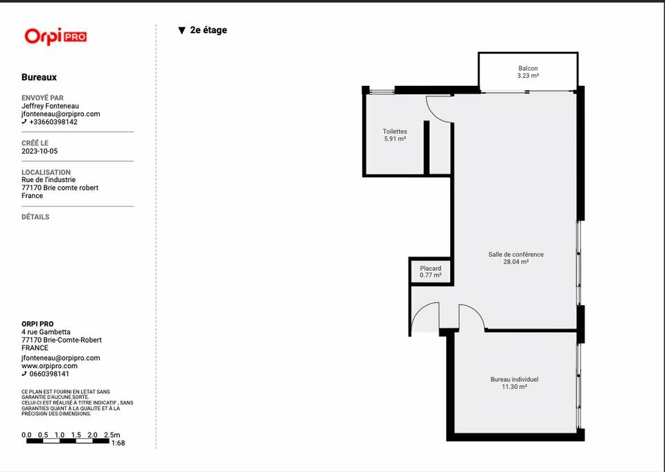
A louer bureaux récemment rénovés d'environ 45 m², idéalement situés dans un petit immeuble de bureau à Brie-Comte-Robert, comprenant un open-space avec balcon, un bureau cloisonné, une réserve et un sanitaire. Situé en deuxième étage, ils offrent une atmosphère calme et propice à la concentration. Bureaux entièrement rénovés offrant un espace moderne et fonctionnel.

Lumineux, avec de grandes fenêtres permettant une bonne luminosité naturelle. Accès facile aux commodités locales, aux transports en commun et aux axes routiers principaux, accès immédiat N104. Proche des commerces, des restaurants et des services.

Les bureaux sont disponibles sous 1 mois pour une occupation. Pour plus d'informations ou pour planifier une visite, veuillez contacter : ORPI PRO LA BRIARDE Gérance au 01 60 62 22 32.


DPE En cours

Les informations sur les risques auxquels ce bien est exposé sont disponibles sur le site Géorisques : www.georisques.gouv.fr

Informations financières

  • Loyer annuel :

  • Honoraires :

  • 7.320 Euros/an HTHC

  • 15 % HT à la charge du preneur

Surfaces proposées

Surface totale de 45 m²

Accès routiers

N104

Desserte transports

- Bus ZI de Villemenon (92m)
- Bus Georges Clemenceau (332m) - supérieur à Lignes : 3148, 3121
- Bus ZI Galilée (369m)
- Bus Sans nom (404m)
- Bus Centre Commercial des 4 Vents (457m) - supérieur à Lignes : 4
- Bus ZI de Villemenon (92m)
- Bus Georges Clemenceau (332m) - supérieur à Lignes : 3148, 3121
- Bus ZI Galilée (369m)
- Bus Sans nom (404m)
- Bus Centre Commercial des 4 Vents (457m) - supérieur à Lignes : 4

Prestations - Equipements

Consommation énergétique

DPE : En cours de réalisation.

Offres similaires

De 25 m² à 100 m² - Dispo. 1er trimestre 2026

BUREAUX

77170, BRIE COMTE ROBERT

77_001093

Surface totale 53 m² - Dispo. Immédiate

BUREAUX

77170, BRIE-COMTE-ROBERT

77_0445

Surface totale 53 m² - Dispo. Immédiate

BUREAUX

77170, BRIE COMTE ROBERT

77_001172