logo-locauxrama

Bureaux à Vendre de 306m² à Avignon - Réf. 84.0854

Présenté par BAUX LOCAUX

1.045.800€ HT H.A.I

Touchez l'image pour voir tous les visuels

Description

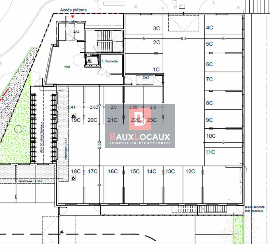
A vendre, Avignon, très bel emplacement pour ce programme tertiaire à venir à proximité de toutes commodités. Immeuble en R+3 proposant des places de parking en RDC dont 2 PMR et 2 bornes électriques.

Le plateau de bureaux en R+3 proposé, sera desservi via un hall d'accueil avec ascenseur et escaliers. Il offrira environ 306 m² de bureaux livrés finis non cloisonnés, et disposera d'une terrasse de 177 m² accessible.

Belle opportunité !


DPE En cours

Les informations sur les risques auxquels ce bien est exposé sont disponibles sur le site Géorisques : www.georisques.gouv.fr

Informations financières

  • Prix de vente :

  • Honoraires :

  • 1.045.800 Euros HT H.A.I

  • 5 % HT à la charge de l'acquéreur

Surfaces proposées

Surface totale de 306 m²

Accès routiers

A7 à 15 minutes

Desserte transports

Tramway St Roch - Université des métiers à 2'
Gare Centre à 10' à pied

Consommation énergétique

DPE : En cours de réalisation.

Offres similaires

Surface totale 578 m² - Dispo. 4ème Trimestre 2027

BUREAUX

84000, AVIGNON

84_0919

De 121 m² à 442 m² - Dispo. 4ème trimestre 2026

BUREAUX

84000, AVIGNON

84_1712

Surface totale 400 m² - Dispo. Immédiate

BUREAUX

84000, AVIGNON

84_1653