logo-locauxrama

Local d'activite à Louer de 1.363m² à Avrainville - Réf. 91.000645

Présenté par ARTHUR LOYD 77-91

177.190€ /an HTHC

Touchez l'image pour voir tous les visuels

Description

Arthur Loyd 77-91 vous propose de louer des locaux neufs modulables, en bordure de N20.

Ce programme, au design très contemporain, saura répondre à vos besoins de stockage avec une charge de 2T/M² et un accès tous porteurs. Le bâtiment A est à vocation d'activités et destiné aux PME/PMI, ne nécessitant pas de grande hauteur.

Honoraires de commercialisation : 15 % HT du loyer annuel HT et Hors Charges à la charge du Preneur (payables à la signature du Bail).


DPE En cours

Les informations sur les risques auxquels ce bien est exposé sont disponibles sur le site Géorisques : www.georisques.gouv.fr

Informations financières

  • Loyer annuel :

  • Honoraires :

  • 177.190 Euros/an HTHC

  • 15 % HT à la charge du preneur

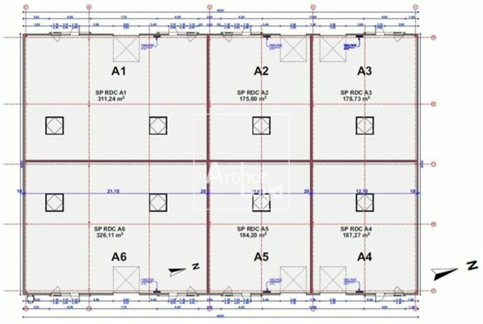
Surfaces proposées


Batiment - LotRDC activitéLoyer annuel
Bat A ( SBY ) Lot A1311,24 M²130 Euros HT/HC/M²/AN
Bat A ( SBY ) Lot A2175,80 M²130 Euros HT/HC/M²/AN
Bat A ( SBY ) Lot A3178,73 M²130 Euros HT/HC/M²/AN
Bat A ( SBY ) Lot A4187,27 M²130 Euros HT/HC/M²/AN
Bat A ( SBY ) Lot A5 184,20 M²130 Euros HT/HC/M²/AN
Bat A ( SBY ) Lot A6 326,11 M²130 Euros HT/HC/M²/AN

Accès routiers

N20/N19

Desserte transports

ORLY à 27 Kms
SNCF Arpajon à 3,4 Kms

Consommation énergétique

DPE : En cours de réalisation.

Offres similaires

Surface totale 240 m² - Dispo. Immédiate

LOCAL D'ACTIVITE

91630, MAROLLES EN HUREPOIX

91_018697

Surface totale 528 m² - Dispo. Immédiate

LOCAL D'ACTIVITE

91630, MAROLLES EN HUREPOIX

91_018677

Surface totale 233 m² - Dispo. Immédiate

LOCAL D'ACTIVITE

91630, GUIBEVILLE

91_0664