logo-locauxrama

Bureaux à Vendre de 111m² à Vitry Sur Seine - Réf. 94.0007

Présenté par LAMOTTE ENTREPRISES & COMMERCES

255.300€

Touchez l'image pour voir tous les visuels

Description

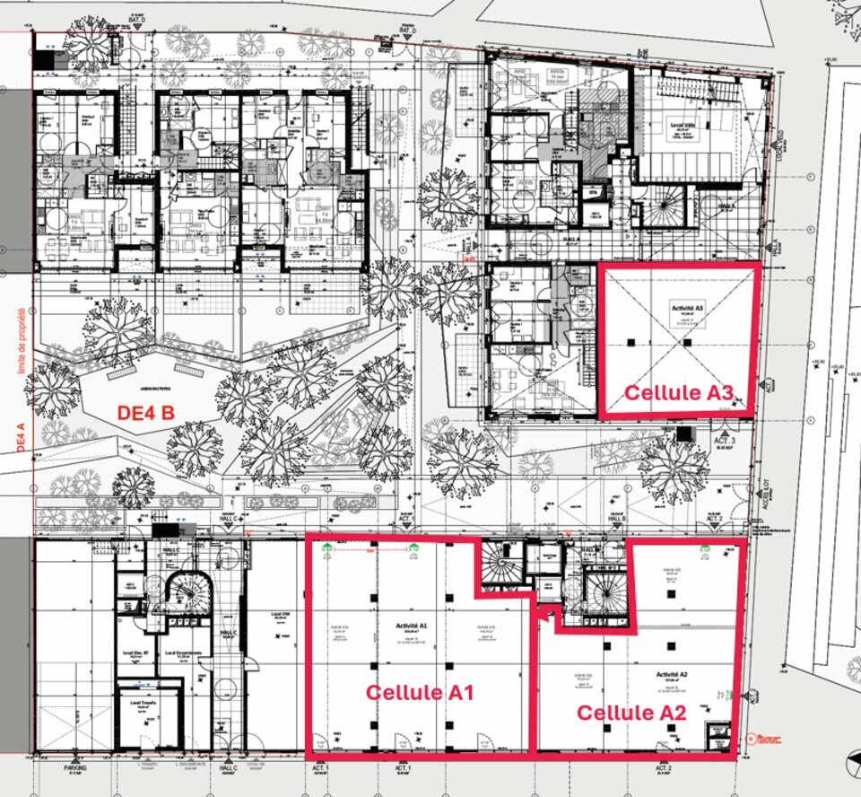
LAMOTTE ENTREPRISES & COMMERCES vous propose, au rez-de-chaussée de la résidence "LA PLACE", composée de 4 bâtiments comprenant 90 appartements, une cellule A3 d'une surface de 111 m² ainsi que 3 stationnements en sous-sol.

Egalement disponibles :

- Cellule A1 : 202 m² + 5 stationnements

- Cellule A2 : 156 m² + 5 stationnements

Prix de vente : 2 300 Euros HT / m², stationnements en sus

Prix unitaire stationnements : 18 000 Euros HT / stationnement


Locaux livrés "brut de béton", vitrines posées et réseaux en attente.

Ref : FG-94_0007


DPE En cours

Les informations sur les risques auxquels ce bien est exposé sont disponibles sur le site Géorisques : www.georisques.gouv.fr

Informations financières

  • Prix de vente :

  • 255.300 Euros

Surfaces proposées

Surface totale de 111 m²

Accès routiers

Proximité des axes autoroutiers

Desserte transports

RER C à proximité

Consommation énergétique

DPE : En cours de réalisation.

Offres similaires

Surface totale 157 m² - Dispo. 1T 2025

BUREAUX

94400, VITRY SUR SEINE

94_0006

Surface totale 360 m² - Dispo. sous promesse de vente

BUREAUX

94400, VITRY SUR SEINE

LR_R48342

Surface totale 191 m² - Dispo. 1T 2025

BUREAUX

94400, VITRY SUR SEINE

94_0001