logo-locauxrama

Local commercial à Louer de 232m² à Louvres - Réf. 95.0020

Présenté par WE INVEST FRANCE

58.000€ /an HT

Touchez l'image pour voir tous les visuels

Description

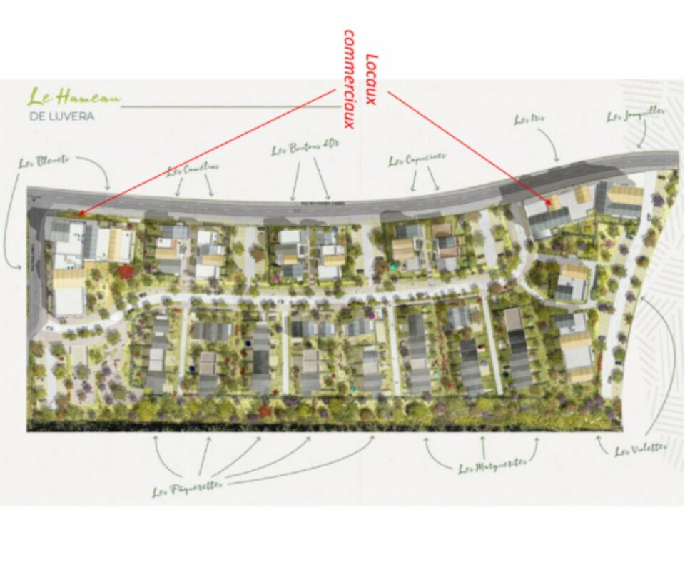
À LOUER LOCAL COMMERCIAL NEUF LOUVRES (95380)

Surface : 232 m²

Type d'activité : toutes activités sauf restauration

Emplacement stratégique :

Situé au coeur d'un nouveau programme immobilier 'LES IRIS', ce local commercial de 232 m² en rez-de-chaussée bénéficie d'un emplacement privilégié à Louvres, à proximité immédiate de la gare et au sein d'un environnement résidentiel dense et en plein développement.

L'emplacement offre une excellente visibilité en angle, avec façades sur la rue Paul Émile Victor et la rue des Grands Champs, garantissant un fort passage piéton et automobile.

Description du local :

  • Surface totale : 232 m²

  • Livré brut de béton, fluides en attente

  • 3 gaines techniques prévues

  • Grandes vitrines en façade

  • Accès direct sur rue

  • Stationnements publics à proximité immédiate

Activités autorisées :

Toutes activités hors restauration (pas d'extraction possible).
Idéal pour :

  • Boulangerie / Pâtisserie

  • Boucherie / Charcuterie / Traiteur

  • Supérette ou commerce alimentaire de proximité

  • Pharmacie, para, pressing, salon, ou point de services de quartier

    Points forts :

✅ Programme neuf normes actuelles
Emplacement en pied d'immeuble forte fréquentation
Quartier résidentiel dynamique
Proche gare RER D et axes principaux

0764014548


DPE En cours

Les informations sur les risques auxquels ce bien est exposé sont disponibles sur le site Géorisques : www.georisques.gouv.fr

Informations financières

  • Loyer annuel :

  • Honoraires :

  • 58.000 Euros/an HT

  • Nous consulter

Surfaces proposées

Surface totale de 232 m²

Consommation énergétique

DPE : En cours de réalisation.

Offres similaires

Surface totale 191 m² - Dispo. Immédiate

LOCAL COMMERCIAL

95380, LOUVRES

95_0023

Surface totale 491 m² - Dispo. Octobre 2025

LOCAL COMMERCIAL

95380, LOUVRES

95_0730