logo-locauxrama

Local d'activite à Louer de 846m² à Obernai - Réf. LR-A1043

Présenté par ADVENIS CONSEIL STRASBOURG

74.500€ /an HTHC

Touchez l'image pour voir tous les visuels

Description

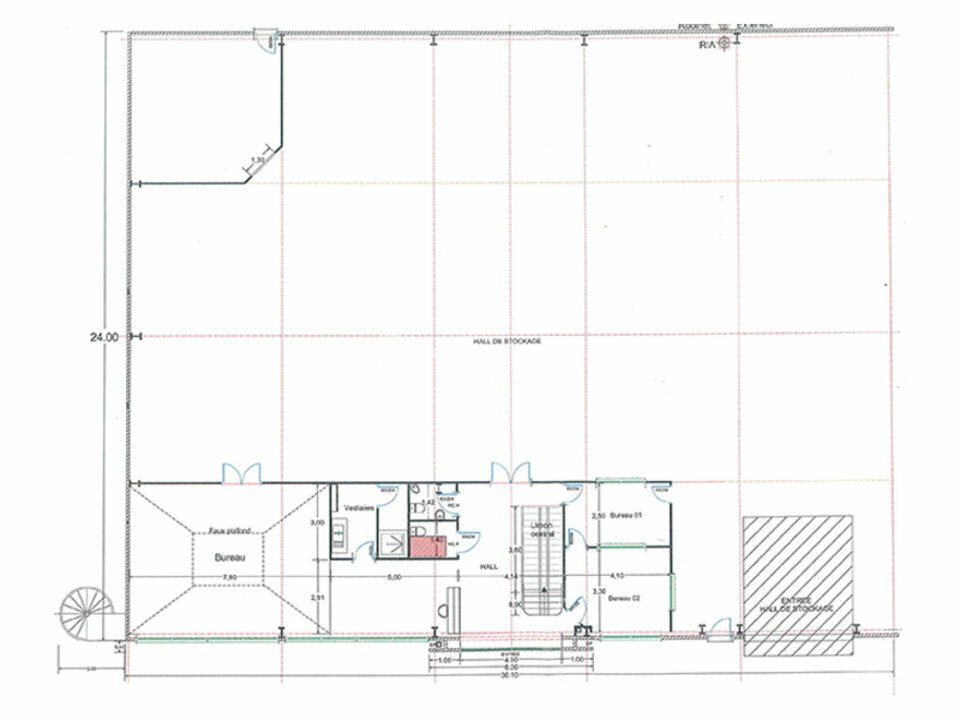
Situé au coeur du parc d'activités du Thal à Obernai, Advenis Conseil et Transaction Strasbourg vous propose à la location 846 m² de locaux à usage d'activités.

Ces locaux sont composés d'un hall de 594 m² avec porte sectionnelle, ainsi que de 252 m² de bureaux aménagés et de locaux sociaux répartis sur 2 niveaux.
L'ensemble se situe au sein d'un bâtiment d'activités indépendant composé de plusieurs lots et implanté sur un site entièrement clos.

Bénéficiant d'un emplacement stratégique au sud de Strasbourg, le parc d'activités du Thal profite d'une excellente accessibilité, avec une proximité immédiate de la gare d'Obernai et des principaux axes autoroutiers et secondaires desservant Sélestat, Molsheim, Rosheim, Entzheim, Geispolsheim, Strasbourg et Saverne.
DPE En cours

Les informations sur les risques auxquels ce bien est exposé sont disponibles sur le site Géorisques : www.georisques.gouv.fr

Informations financières

  • Loyer annuel :

  • Honoraires :

  • 74.500 Euros/an HTHC

  • 15 % HT à la charge du preneur

Surfaces proposées


SurfaceDétail des surfaces
846Activités : 594 m² / Bureaux : 252 m²

Accès routiers

A 30 km au Sud de Strasbourg
A 49 km de Colmar
Autoroute A35
Sortie n°11

Desserte transports

Desservi par le train - Gare SNCF

Consommation énergétique

DPE : En cours de réalisation.

Offres similaires

Surface totale 1320 m² - Dispo. Septembre 2025

LOCAL D'ACTIVITE

67210, OBERNAI

67_0465

Surface totale 450 m² - Dispo. A convenir entre les parties

LOCAL D'ACTIVITE

67210, BERNARDSWILLER

LR_A46420

Surface totale 350 m² - Dispo. Immédiate

LOCAL D'ACTIVITE

67210, OBERNAI

LR_A51547