logo-locauxrama

Local d'activite à Vendre à partir de 85m² à Geispolsheim - Réf. LR-A46314

Présenté par ADVENIS CONSEIL STRASBOURG

136.000€ HT
prix de la surface minimum

Touchez l'image pour voir tous les visuels

Description

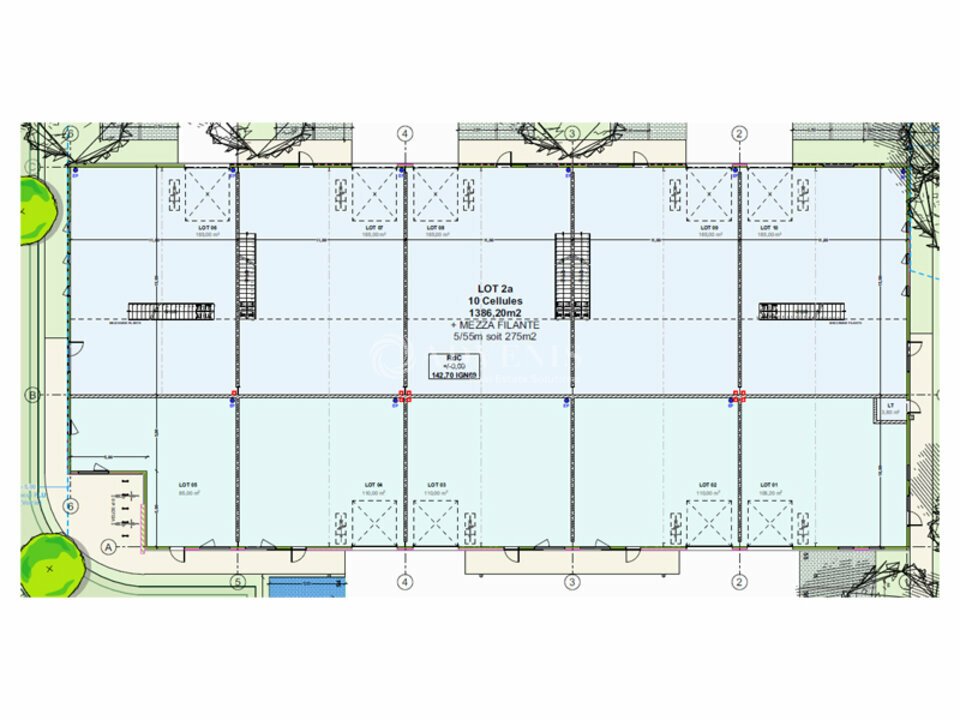
Au Sud de Strasbourg, situés dans le nouveau Parc du Wiesel à Geispolsheim, Advenis Conseil et Transaction vous propose à la vente 1 621 m² de locaux d'activités.

Ces locaux sont composés de 10 cellules ; 1 cellule de 85 m², 4 cellules de 110 m² et 5 cellules de 220 m². Chaque cellule est composée d'une porte sectionnelle (sauf pour la cellule de 85 m²) et d'une porte piétonne. Les grandes cellules bénéficient également d'une mezzanine filante de 275 m². Livraison brut, fluides en attentes.

Le Parc du Wiesel est un ensemble immobilier composé de différents immeubles à usage d'activité, de stockage, de showroom et de bureaux. Celui-ci est implanté sur une parcelle de 42.485 m². Idéalement situé à proximité des embranchements autoroutiers en direction de Strasbourg, Brumath, Saverne, Entzheim, Duppigheim, Molsheim, Obernai, Barr et Sélestat.
DPE En cours

Les informations sur les risques auxquels ce bien est exposé sont disponibles sur le site Géorisques : www.georisques.gouv.fr

Informations financières

  • Prix de vente surface minimum :

  • Honoraires :

  • 136.000 Euros HT (1.600 Euros/m2 HT)

  • 5 % HT à la charge de l'acquéreur

Surfaces proposées


Bât/LotSurfacePrix de vente /m² HD ou HTObservations
2a/011061700Surface de 106,20 m²
2a/021101700Surface de 110 m²
2a/031101700Surface de 110 m²
2a/041101700Surface de 110 m²
2a/05851700Surface de 85 m²
2a/062201600Surface de 165 m² + Mezzanine de 55 m²
2a/072201600Surface de 165 m² + Mezzanine de 55 m²
2a/082201600Surface de 165 m² + Mezzanine de 55 m²
2a/092201600Surface de 165 m² + Mezzanine de 55 m²
2a/10220Surface de 165 m² + Mezzanine de 55 m²

Desserte transports

A 11 km de Strasbourg
Autoroute A35
Sortie La Vigie puis RD222
A 7 km de l'Aéroport international Strasbourg-Entzheim

Consommation énergétique

DPE : En cours de réalisation.

Offres similaires

Surface totale 374 m² - Dispo. Immédiate

LOCAL D'ACTIVITE

67400, GEISPOLSHEIM

67_0524

Surface totale 740 m² - Dispo. Immédiate

LOCAL D'ACTIVITE

67118, GEISPOLSHEIM

LR_A11040

Surface totale 936 m² - Dispo. Sous 18 mois

LOCAL D'ACTIVITE

67118, GEISPOLSHEIM

LR_A55873