logo-locauxrama

Bureaux à Vendre à partir de 125m² à Entzheim - Réf. LR-A52973

Présenté par ADVENIS CONSEIL STRASBOURG

325.000€ HT
prix de la surface minimum

Touchez l'image pour voir tous les visuels

Description

Advenis Conseil et Transaction Strasbourg vous propose à la vente des plateaux de bureaux neufs dans un futur bâtiment situé au coeur de l'Aéroparc d'Entzheim.

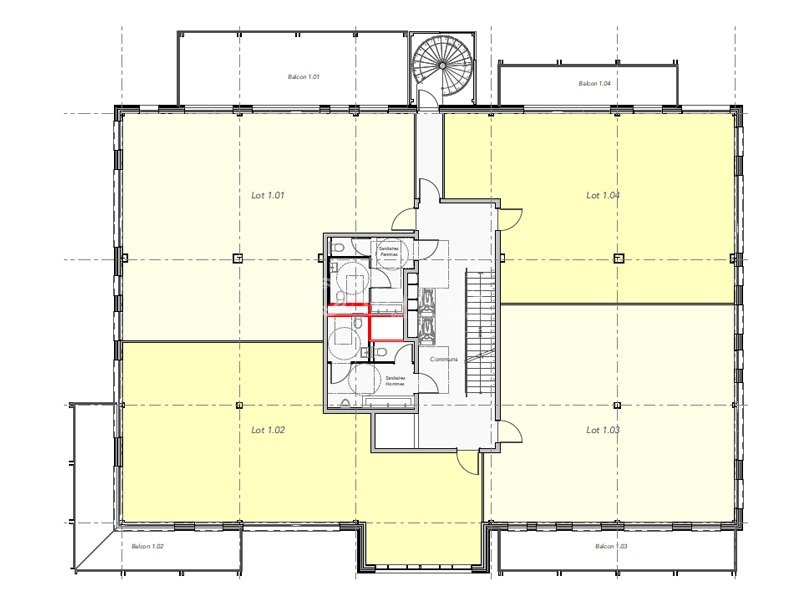
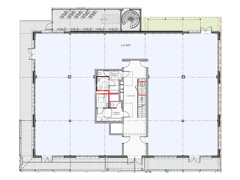
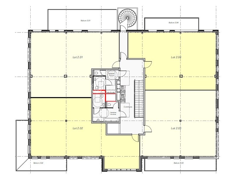
Ce bâtiment écologiquement responsable en R+2, offrira une surface totale de 1 600 m², divisible en 12 lots allant de 125 à 524 m². Les bureaux seront livrés non cloisonnés, avec un balcon privatif pour chaque lot situé en étage.

Idéalement implanté dans un cadre dynamique et attractif, ce bâtiment bénéficie d'une localisation stratégique, en entrée de ville et à proximité des commodités. Il est facilement accessible depuis les principaux axes autoroutiers, l'Aéroport International de Strasbourg-Entzheim et sa gare.
DPE En cours

Les informations sur les risques auxquels ce bien est exposé sont disponibles sur le site Géorisques : www.georisques.gouv.fr

Informations financières

  • Prix de vente surface minimum :

  • Honoraires :

  • 325.000 Euros HT (2.600 Euros/m2 HT)

  • 5 % HT à la charge de l'acquéreur

Surfaces proposées


Bât/LotTypologieSurfaceDétail des surfacesPrix de vente HD ou HTParking SIMPLE/Parking DOUBLEObservations
1.03Bureaux133,3Surface privative de 114 m²412 005 Euros4/0+ balcon de 20,0 m²
1.04Bureaux125,1Surface privative de 107 m²397 371 Euros4/0+ balcon de 15,0 m²
2.01Bureaux138Surface privative de 118 m²393 448 Euros5/0+ balcon de 24,0 m²
2.02Bureaux145Surface privative de 124 m²346 421 Euros3/1+ balcon de 25,0 m²
2.03Bureaux132,2Surface privative de 113 m²347 148 Euros4/0+ balcon de 20,0 m²
2.04Bureaux125,1Surface privative de 107 m²358 585 Euros4/0+ balcon de 15,0 m²

Desserte transports

A 15 km au Sud de Strasbourg
Autoroute A35/E25 sortie Entzheim
Suivre RD 400
Train (arrêt aérogare puis piste cyclable)
Tram ligne B arrêt Lingolsheim
Puis bus ligne 12
Aéroparc tertiaire
Zone labellisée 'très haut débit'

Consommation énergétique

DPE : En cours de réalisation.

Offres similaires

De 83 m² à 1176 m² - Dispo. Immédiate

BUREAUX

67960, ENTZHEIM

LR_A509

De 151 m² à 364 m² - Dispo. Immédiate

BUREAUX

67960, ENTZHEIM

LR_A52812

De 107 m² à 683 m² - Dispo. 1er semestre 2026.

BUREAUX

67960, ENTZHEIM

67_0048