logo-locauxrama

Local d'activite à Louer de 173m² à Strasbourg - Réf. LR-A54987

Présenté par ADVENIS CONSEIL STRASBOURG

16.608€ /an NET HC

Touchez l'image pour voir tous les visuels

Description

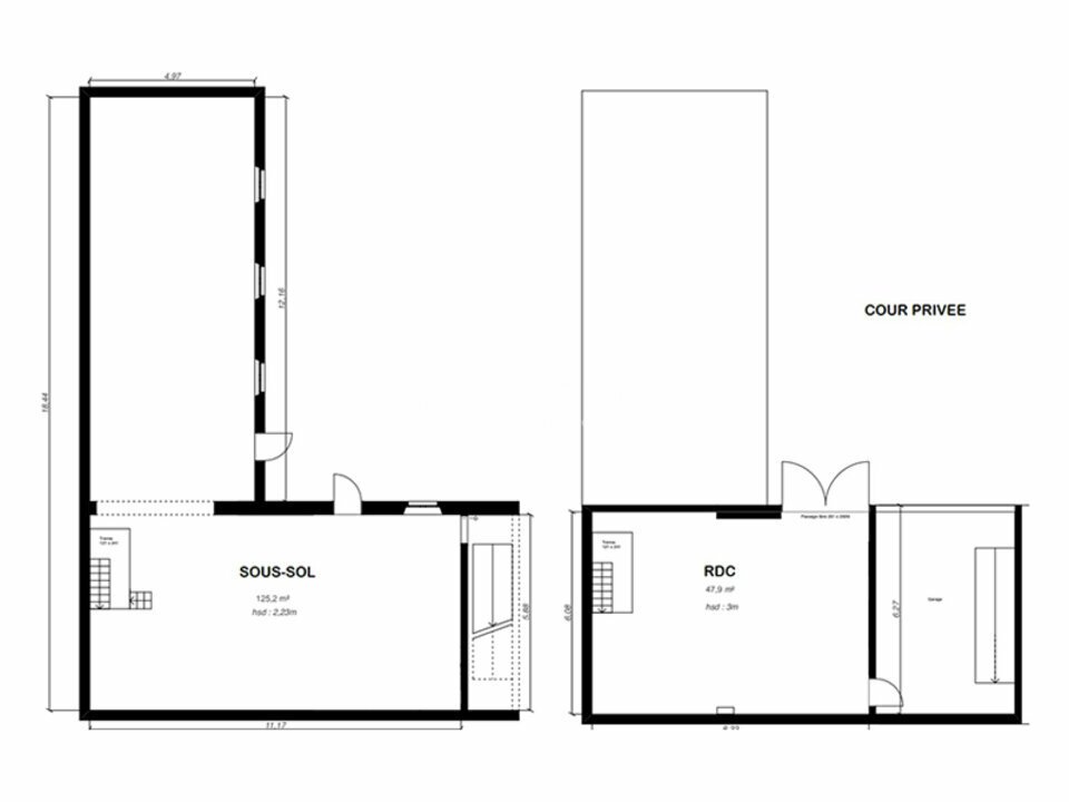
Advenis Conseil et Transaction Strasbourg vous propose à la location un local de stockage d'une superficie totale d'environ 173 m², situé dans le quartier des XV au coeur de Strasbourg.

Ce bien se compose de 48 m² en rez-de-chaussée, avec une hauteur sous plafond de 3 mètres, un point d'eau et une prise triphasée, ainsi que de 125 m² en sous-sol offrant une hauteur sous plafond de 2,23 mètres.

Idéalement implanté à proximité immédiate de l'Avenue des Vosges, il bénéficie d'un emplacement stratégique entre les quartiers de l'Orangerie, de l'Esplanade et du centre-ville. Le local est facilement accessible en voiture, que ce soit depuis le centre-ville ou l'autoroute, et profite également d'une excellente desserte en transports en commun grâce à la présence de nombreux arrêts de bus et de tram à proximité.
DPE En cours

Les informations sur les risques auxquels ce bien est exposé sont disponibles sur le site Géorisques : www.georisques.gouv.fr

Informations financières

  • Loyer annuel :

  • Taxe foncière :

  • 16.608 Euros/an NET HC

  • 2.045 Euros/an

Surfaces proposées


Surface
48 m²
125 m²

Desserte transports

Bus 2 et C1 arrêt "Marne"
Tram C, E et F arrêt "Observatoire"

Consommation énergétique

DPE : En cours de réalisation.

Offres similaires

Surface totale 404 m² - Dispo. Immédiate

LOCAL D'ACTIVITE

67200, STRASBOURG

67_0215

Surface totale 151 m² - Dispo. Janvier 2023

LOCAL D'ACTIVITE

67000, STRASBOURG

67_000244

Surface totale 150 m² - Dispo. Immédiate

LOCAL D'ACTIVITE

67200, STRASBOURG

67_000359