Présenté par ADVENIS CONSEIL STRASBOURG
Advenis Conseil et Transaction Strasbourg vous propose à la location un bâtiment d'activité indépendant de 1 581 m² environ, situés dans le parc d'activités des Collines de Mulhouse.
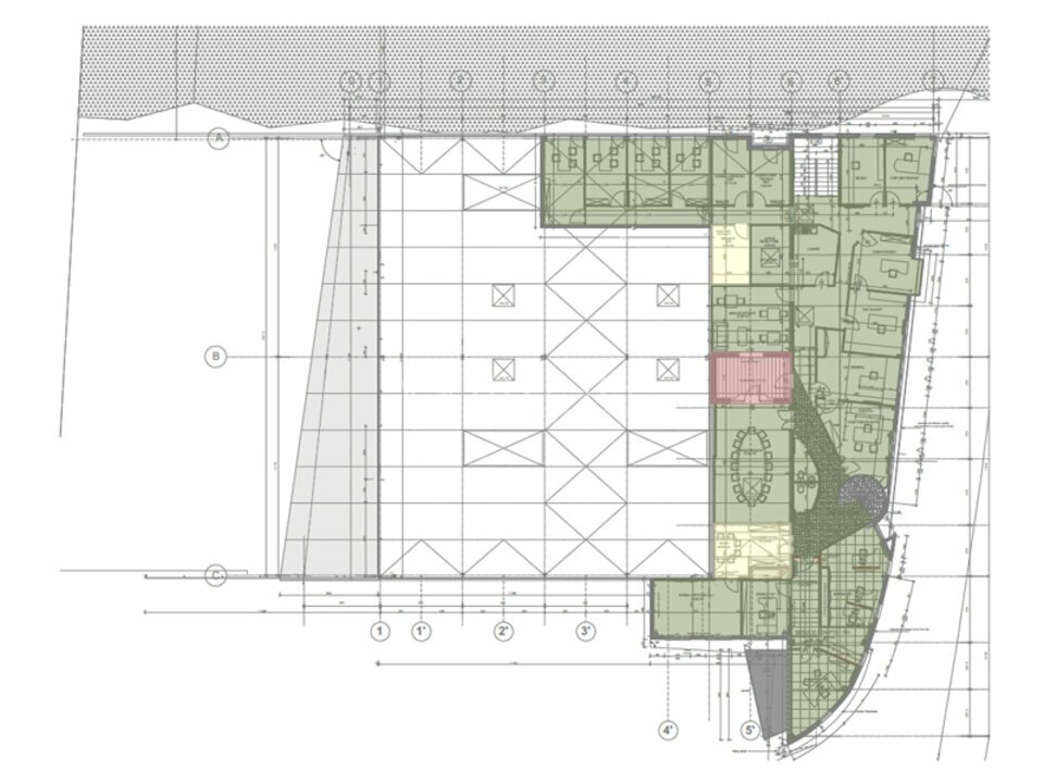
Ce bâtiment d'activité, construit en 2001 avec une extension de bureaux en 2023, est implanté sur un site clos de 3 887 m². Il est composé de 832 m² de hall avec 3 portes sectionnelle dont une de 6,5 mètres de larges, ainsi que de 749 m² de bureaux aménagés et cloisonnés sur 2 niveaux. Un sous sous-sol d'environ 40 m² avec chaufferie et archives complète ce bien.
La Zone d'Activités de Mulhouse est située à environ 35 km au sud de Colmar et à proximité immédiate de la frontière allemande et suisse. Idéalement située à proximité des principaux axes routiers et autoroutiers. La gare SNCF de Mulhouse, desservie par des lignes régionales et TGV, permet des liaisons rapides vers Strasbourg, Bâle et Paris.
Les informations sur les risques auxquels ce bien est exposé sont disponibles sur le site Géorisques : www.georisques.gouv.fr
Loyer annuel :
Prix de vente :
Taxe foncière :
128.000 Euros/an
1.300.000 Euros
7.735 Euros/an
| Typologie | Surface | Observations |
| Activités | 832 | |
| Bureaux | 749 | + sous-sol d'environ 40 m², chaufferie et archives |
A 5 miutes de l'A35 en voiture
A 15 minutes de la Gare Centrale de Mulhouse
A 30 minutes de l'Aéroport Internationale de Bâle Mulhouse.
Situé au Coeur du Parc des Collines
Bus ligne C6 arrêt "Monnet"
