logo-locauxrama

Local d'activite à Vendre de 967m² à Bischheim - Réf. LR-A783

Présenté par ADVENIS CONSEIL STRASBOURG

927.125€ HD

Touchez l'image pour voir tous les visuels

Description

Dans la Zone Industrielle de Bischheim-Hoenheim, Advenis Conseil et Transaction Strasbourg vous propose à la vente un hall à usage d'activité avec bureaux indépendants d'une surface totale de 967 m².

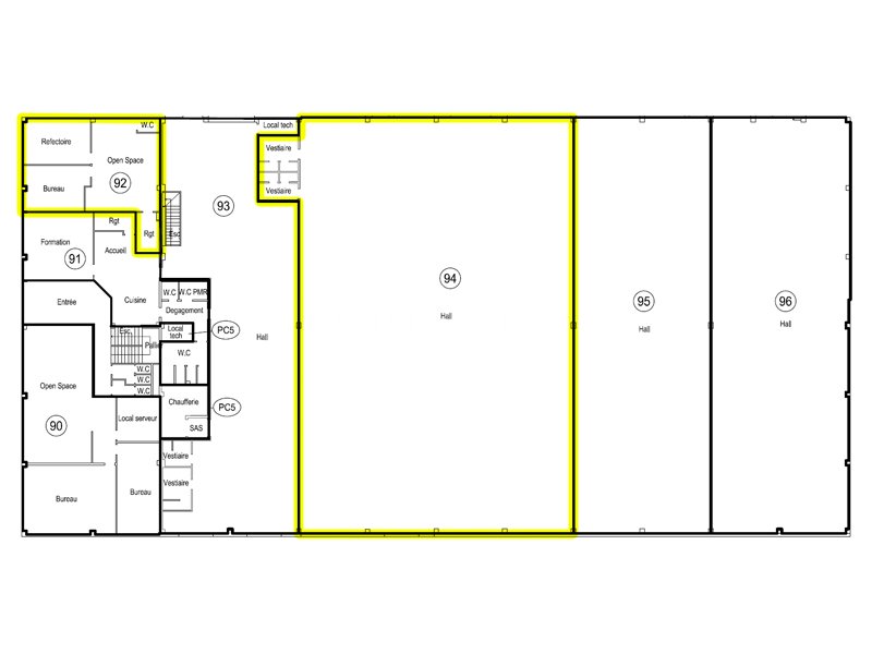
Ces locaux sont composés de 102 m² de bureaux avec 2 entrées indépendantes et aménagés en un open-space, un réfectoire, un grand bureau cloisonné, un local d'archive et un sanitaire privatif. Et d'un hall, non accessible depuis les bureaux, de 865 m² avec 3 portes sectionnelles.
Ils sont situés au sein d'un ensemble immobilier composé de locaux d'activités et stockage avec des bureaux en façade en R+1, implanté sur un terrain clos de 9.790 m².

La Zone Industrielle de Bischheim-H?nheim se situe à seulement 10 minutes au nord du centre-ville de Strasbourg et de sa gare. Facile d'accès avec à proximité des accès autoroutiers et routiers en direction de Strasbourg, Vendenheim, Mundolsheim, Brumath et Saverne. Également bien desservie par les transports en commun (tram, bus et Flex?Hop) et proche de diverses commodités.
DPE Vierge

Les informations sur les risques auxquels ce bien est exposé sont disponibles sur le site Géorisques : www.georisques.gouv.fr

Informations financières

  • Prix de vente :

  • Honoraires :

  • 927.125 Euros HD

  • 5 % HT à la charge de l'acquéreur

Surfaces proposées


Bât/LotTypologieSurfacePrix de vente HD ou HT
92Activités865,40800.000 Euros HT net vendeur
94Bureaux101,70127.125 Euros HT net vendeur

Accès routiers

Proche divers commodités
Tram ligne B,
Bus lignes L3, L6, n°74 et n° 201, arrêt 'Hoenheim Gare'
Flex'hop: Energie (nouvelle ligne de bus à la demande)

Desserte transports

Quartier Bischheim : ZI
A 10 km au Nord de Strasbourg
Autoroute A35
Sortie Bischheim / Hoenheim
Suivre direction ZI
Parking Relais (P+R): Hoenheim Gare
Zone labellisée 'très haut débit'
Pôle Flex'Hop

Consommation énergétique

DPE : En cours de réalisation.

Offres similaires

Surface totale 157 m² - Dispo. Immédiate

LOCAL D'ACTIVITE

67800, BISCHHEIM

67_0595

De 187 m² à 384 m² - Dispo. 1er trimestre 2026

LOCAL D'ACTIVITE

67800, BISCHHEIM

LR_A56189

De 940 m² à 940 m² - Dispo. Immédiate

LOCAL D'ACTIVITE

67800, HOENHEIM

LR_A19996