logo-locauxrama

Local d'activite à Vendre ou à Louer à partir de 171m² à Saint Nizier Le Desert - Réf. LR-H51703

Présenté par ADVENIS CONSEIL LYON

Touchez l'image pour voir tous les visuels

Description

ADVENIS CONSEIL LYON vous propose à la vente ou à la location, des cellules d'activité divisibles à partir de 171 m² au sein du Parc des Lagunes sur la commune de Saint-Nizier-Le-Désert, à 22km de Bourg-en-Bresse.
Possibilité d'extension pour deux bâtiments clé en main de 1 500 m² environ. Projet sur consultation.
Disponibilité : 9 mois après accord.
Pour toute demande d'information et/ou visite, contactez nous au 04 26 04 15 07 !
DPE En cours

Les informations sur les risques auxquels ce bien est exposé sont disponibles sur le site Géorisques : www.georisques.gouv.fr

Informations financières

  • Nous consulter

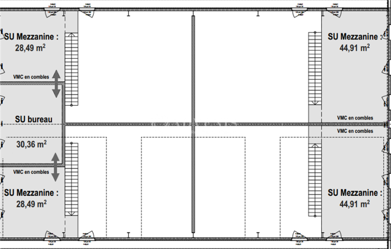
Surfaces proposées


Bât/LotSurfaceDétail des surfacesParking sous-sol/Parking extérieurObservations
APossibilité d'un bâtiment clé en main de 1 500m² environ. Projet sur consultation
C/C1171Activités : 81 m² / Bureaux : 90 m²0/8
C/C2171Activités : 81 m² / Bureaux : 90 m²0/8
C/C3171Activités : 81 m² / Bureaux : 90 m²0/8
C/C4171Activités : 81 m² / Bureaux : 90 m²0/8
D/D1171Activités : 81 m² / Bureaux : 90 m²0/8
D/D2171Activités : 81 m² / Bureaux : 90 m²0/8
D/D4171Activités : 81 m² / Bureaux : 90 m²0/8
D/D3171Activités : 81 m² / Bureaux : 90 m²0/8

Desserte transports

Autoroute A42 à 21 min
Autoroute A40 à 20min
A 51km de Lyon
A 22km de Bourg-en-Bresse
A 17 min de la Gare SNCF de Pont d'Ain
Aéroport Lyon Saint-Exupéry à 44 min

Consommation énergétique

DPE : En cours de réalisation.

Offres similaires

Surface totale 504 m² - Dispo. Immédiate

LOCAL D'ACTIVITE

01320, CHALAMONT

01_0049