logo-locauxrama

Local commercial à Louer de 582m² à Limas - Réf. LR-H53611

Présenté par ADVENIS CONSEIL LYON

101.850€ /an HTHC

Touchez l'image pour voir tous les visuels

Description

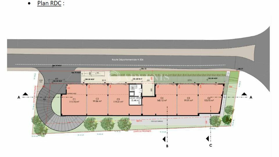
BEFA - Locaux Commerciaux à Louer - Route d'Anse

Advenis Conseil vous propose plusieurs cellules commerciales à louer, idéales pour des activités commerciales.

Cellule C4 : 246,58 m² (dont 106,46 m² de mezzanine) - Loyer annuel : 43 200 Euros / an HT HC

Cellule C5 : 166,98 m² (dont 67,07 m² de mezzanine) - Loyer annuel : 29 300 Euros / an HT HC

Cellule C6 : 168,41 m² (dont 64,66 m² de mezzanine) - Loyer annuel : 29 500 Euros / an HT HC

Parking : 14 places réservées, soit 4 places par cellule

Livraison : 3ème trimestre 2025

Visibilité : Très bonne visibilité sur la RN6 avec plus de 25 000 véhicules / jour

Dépôt de garantie : 3 mois de loyer HT

Bail commercial : 3/6/9

Ces locaux bénéficient d'une excellente situation et sont adaptés pour divers types d'activités commerciales.
Contactez Fabienne Triomphe au 06 17 10 22 12 pour plus d'informations et pour réserver votre cellule.
DPE En cours

Les informations sur les risques auxquels ce bien est exposé sont disponibles sur le site Géorisques : www.georisques.gouv.fr

Informations financières

  • Loyer annuel :

  • Honoraires :

  • 101.850 Euros/an HTHC

  • 20 % HT à la charge du preneur

Surfaces proposées


Bât/LotSurfaceLoyer m²/an HT HCParking sous-sol/Parking extérieur
C42471750/4
C51671750/4
C61681750/4

Desserte transports

500 m sortie A6 Villefranche Sud

Consommation énergétique

DPE : En cours de réalisation.

Offres similaires

Surface totale 71 m² - Dispo. Immédiate

LOCAL COMMERCIAL

69400, VILLEFRANCHE-SUR-SAONE

69_1544

Surface totale 870 m² - Dispo. immediate

LOCAL COMMERCIAL

69400, VILLEFRANCHE SUR SAONE

694L836891

Surface totale 100 m² - Dispo. immediate

LOCAL COMMERCIAL

69400, GLEIZE

694X839795