logo-locauxrama

Local d'activite à Louer de 517m² à Lesquin - Réf. LR-L54120

Présenté par ADVENIS CONSEIL LILLE

47.775€ /an HT

Touchez l'image pour voir tous les visuels

Description

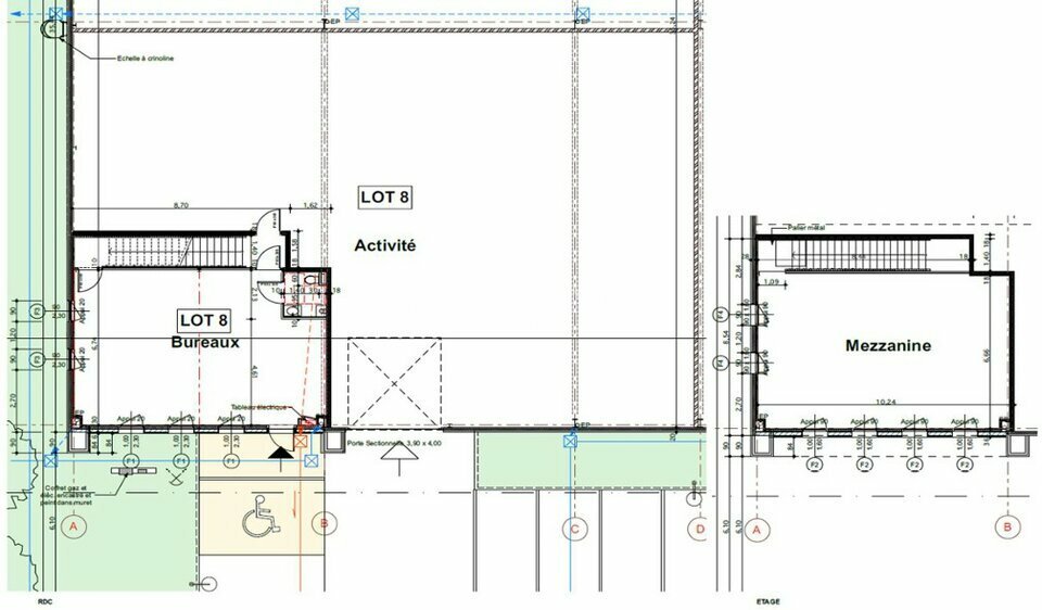
Advenis Conseil Lille vous propose à la location un entrepôt d'une superficie totale de 517 m² comprenant des bureaux en mezzanine. Situé dans la commune de Lesquin, au coeur du CRT, dans le Wind Park cet entrepôt est privilégié par son emplacement grâce au secteur dynamique regroupant de nombreuses entreprises. Il dispose de plusieurs places de stationnements ainsi qu'une porte sectionnelle. Faites confiance à l'équipe Advenis Conseil Lille, n'hésitez pas à nous contacter pour plus de renseignements.


DPE En cours

Les informations sur les risques auxquels ce bien est exposé sont disponibles sur le site Géorisques : www.georisques.gouv.fr

Informations financières

  • Loyer annuel :

  • Taxe foncière :

  • Honoraires :

  • 47.775 Euros/an HT

  • 7 Euros/an

  • 15 % HT à la charge du preneur

Surfaces proposées


Bât/LotTypologieSurface TotaleSurface entrepôtSurface bureaux
1Activité / Bureaux517367 m² 150 m² (RDC et R+1)

Consommation énergétique

DPE : En cours de réalisation.

Offres similaires

Surface totale 1334 m² - Dispo. Immédiate

LOCAL D'ACTIVITE

59810, LESQUIN

LR_L43104

Surface totale 333 m² - Dispo. Immédiate

LOCAL D'ACTIVITE

59810, LESQUIN

LR_L41222

De 572 m² à 2301 m² - Dispo. Décembre 2025

LOCAL D'ACTIVITE

59810, LESQUIN

LR_L49683