logo-locauxrama

Entrepot à Louer de 517m² à Lesquin - Réf. LR-L54174

Présenté par ADVENIS CONSEIL LILLE

Touchez l'image pour voir tous les visuels

Description

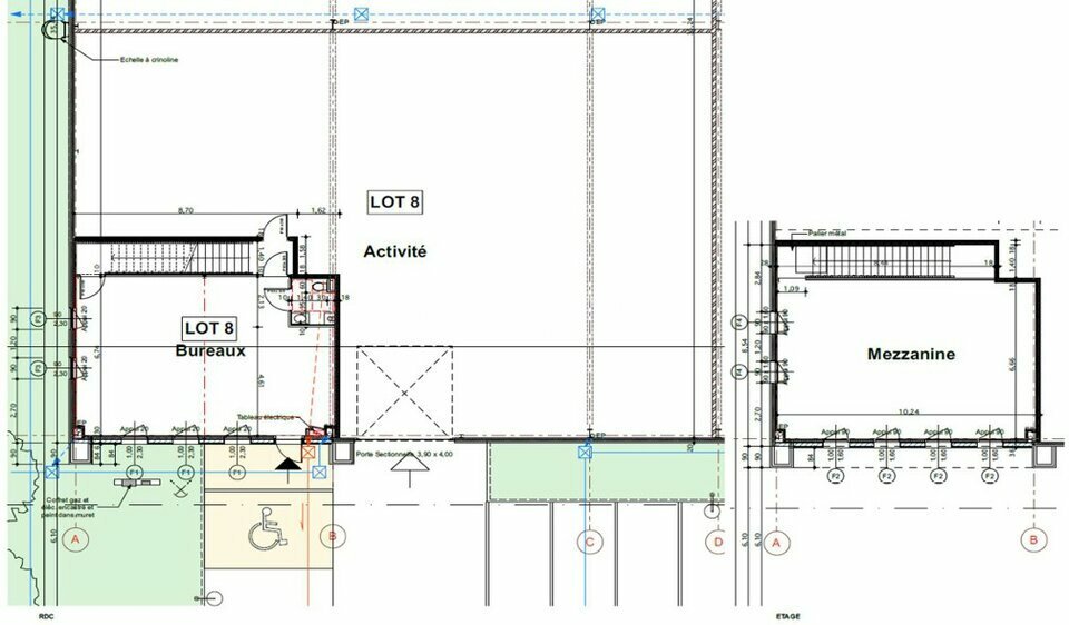
Advenis Conseil Lille vous propose à la location un entrepôt d'une superficie totale de 517 m² comprenant des bureaux en mezzanine. Situé dans la commune de Lesquin, au coeur du CRT, dans le Wind Park cet entrepôt est privilégié par son emplacement stratégique grâce au secteur dynamique regroupant de nombreuses entreprises. Il dispose de plusieurs places de stationnements ainsi qu'une porte sectionnelle. Faites confiance à l'équipe Advenis Conseil Lille, n'hésitez pas à nous contacter pour plus de renseignements.
DPE En cours

Les informations sur les risques auxquels ce bien est exposé sont disponibles sur le site Géorisques : www.georisques.gouv.fr

Informations financières

  • Nous consulter

Surfaces proposées


TypologieSurfaceDétail des surfaces
Entrepôt avec bureaux d'accompagnements 517367 m² d'entrepôts et 150 m² de bureaux

Accès routiers

A 10 min de Lille
Autoroute A1
Sortie n°20 "Vendeville/Ronchin"

Consommation énergétique

DPE : En cours de réalisation.

Offres similaires

De 3236 m² à 6473 m² - Dispo. Août 2025

ENTREPOT

59810, LESQUIN

59_7919

De 200 m² à 700 m²

ENTREPOT

59810, LESQUIN

LR_L12564

De 357 m² à 1826 m²

ENTREPOT

59810, LESQUIN

LR_L33163