logo-locauxrama

Bureaux à Vendre ou à Louer à partir de 500m² à Calais - Réf. LR-L55233

Présenté par ADVENIS CONSEIL LILLE

Touchez l'image pour voir tous les visuels

Description

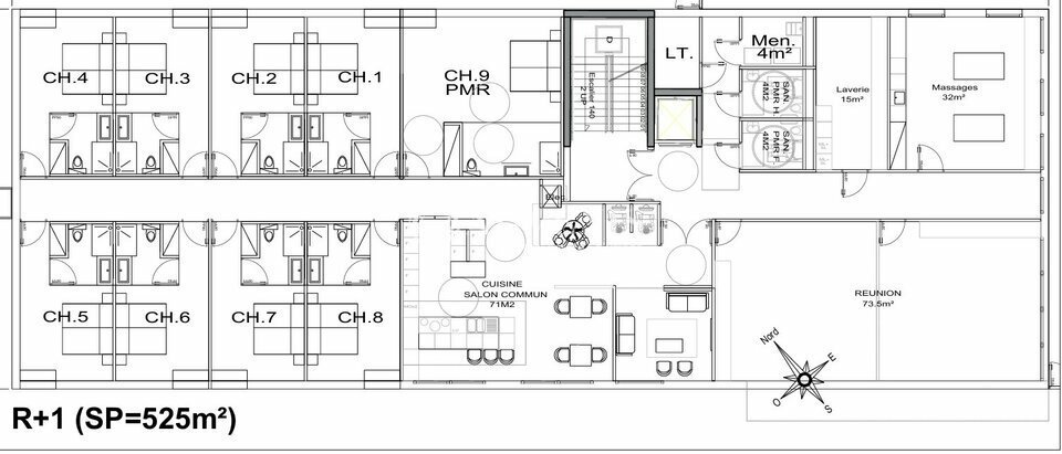
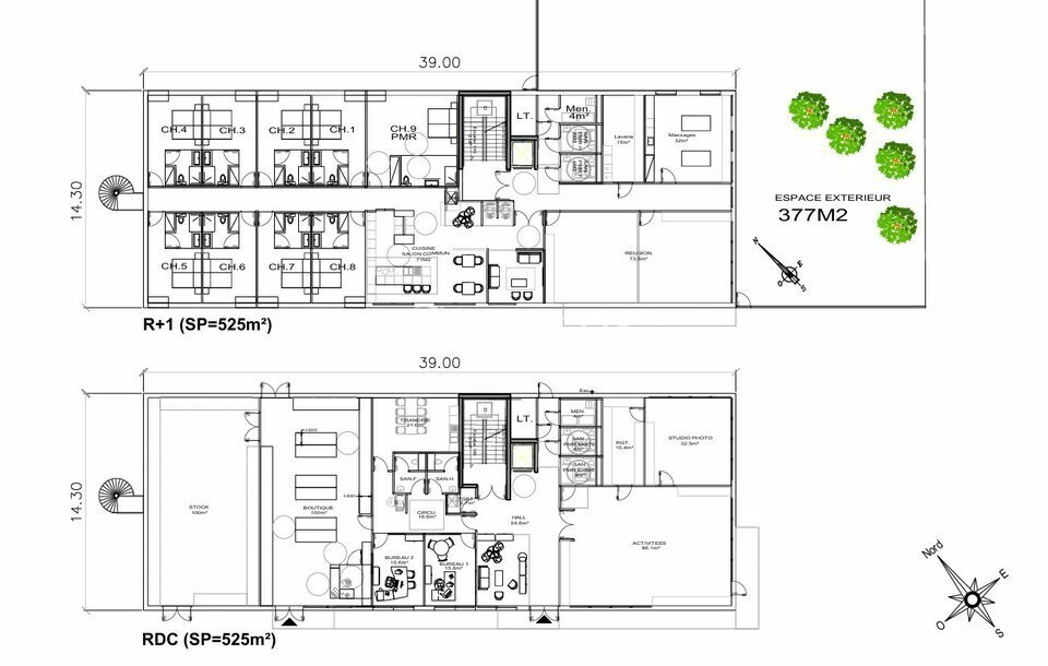
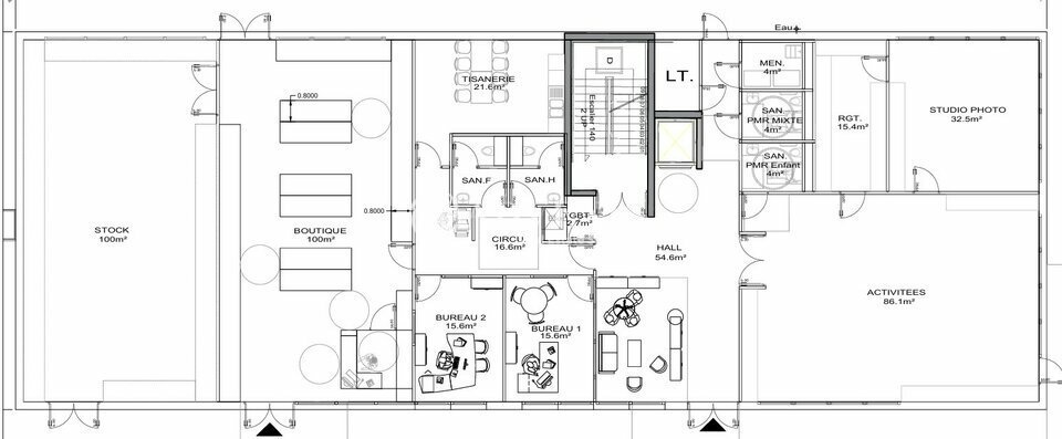
Advenis Conseil Lille vous présente à la location ou à la vente un immeuble neuf de bureaux en R+1, d'une surface d'environ 1 000 m². Conçu avec une structure béton et des châssis aluminium, il bénéficie d'une climatisation réversible assurant confort et efficacité énergétique.

Les locaux seront livrés :

Paysagers (sol, peinture, faux plafonds) dans le cadre d'une location

Brut de béton dans le cadre d'une vente

20 parkings privatifs complètent cette offre, garantissant un confort d'accès rare. La livraison est prévue sous 15 mois après accord, offrant aux entreprises la possibilité d'anticiper leur aménagement. Ces bureaux représentent une opportunité idéale pour les sociétés souhaitant s'implanter dans des locaux neufs, modernes et modulables.
DPE En cours

Les informations sur les risques auxquels ce bien est exposé sont disponibles sur le site Géorisques : www.georisques.gouv.fr

Informations financières

  • Loyer annuel surface minimum :

  • Prix de vente surface minimum :

  • Honoraires :

  • 75.000 Euros/an HT (150 Euros/m2/an HT)

  • 650.000 Euros HT (1.300 Euros/m2 HT)

  • 15 % HT à la charge du preneur

Surfaces proposées


NatureLoyer annuelStationnementPrix de vente net vendeur
Bureaux150 Euros HT-HC /m² /an20 unités1.300 Euros HT /m² (stationnements inclus)

Consommation énergétique

DPE : En cours de réalisation.

Offres similaires

Surface totale 105 m²

BUREAUX

62000, DAINVILLE

62_0284

Surface totale 58 m² - Dispo. sous 3 mois

BUREAUX

62630, ETAPLES

LR_L57778

Surface totale 500 m² - Dispo. Immédiate

BUREAUX

62000, ARRAS

62_0283