logo-locauxrama

Local d'activite à Vendre de 1.751m² à Basse-goulaine - Réf. LR-O44412

Présenté par ADVENIS CONSEIL NANTES

2.976.700€ HD

Touchez l'image pour voir tous les visuels

Description

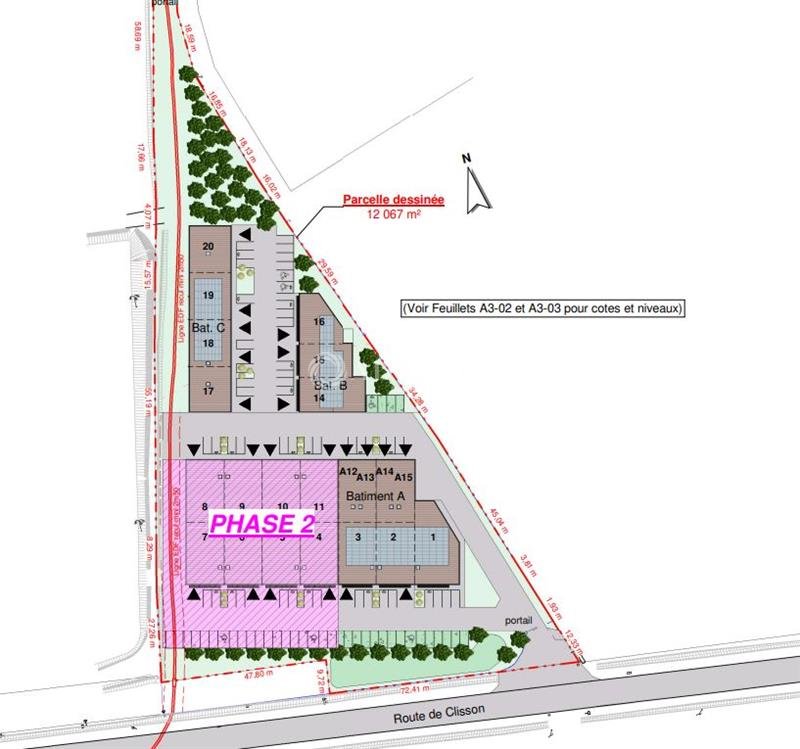
Au sein d'une zone dynamique du Sud Loire ,à proximités des services, des axes routiers et avec une excellente visibilité, ADVENIS Immobilier vous propose au sein d'un parc paysagé neuf des cellules d'activités disponibles à la vente en VEFA.
Les cellules seront livrées brut de béton, fluides livrés
Elles se composeront d'un stockage et d'une grande mezzanine construite à aménager.
Construction de qualité sur un site clôturé et disposant de parkings.
DPE En cours

Les informations sur les risques auxquels ce bien est exposé sont disponibles sur le site Géorisques : www.georisques.gouv.fr

Informations financières

  • Prix de vente :

  • Honoraires :

  • 2.976.700 Euros HD

  • 4 % HT à la charge de l'acquéreur

Surfaces proposées


Bât/LotSurfaceDétail des surfacesPrix de vente /m² HD ou HTParking sous-sol/Parking extérieurObservations
A/6255Activités : 191 m² / Bureaux : 64 m²18220/7Dont 64m² de Mezzanine livrée Brut de Béton à aménager
A/7253Activités : 190 m² / Bureaux : 63 m²18430/8Dont 63m² de Mezzanine livrée Brut de Béton à aménager
A/8253Activités : 190 m² / Bureaux : 63 m²15990/2Dont 63m² de Mezzanine livrée Brut de Béton à aménager
A/9255Activités : 191 m² / Bureaux : 64 m²15980/2Dont 64m² de Mezzanine livrée Brut de Béton à aménager
A/10255Activités : 191 m² / Bureaux : 64 m²15980/2Dont 64m² de Mezzanine livrée Brut de Béton à aménager
A/12160Activités : 130 m² / Bureaux : 30 m²15630/2Dont 30m² de Mezzanine livrée Brut de Béton à aménager
A/12 Bis160Activités : 130 m² / Bureaux : 30 m²15630/2Dont 30m² de Mezzanine livrée Brut de Béton à aménager
A/13 bis160Activités : 130 m² / Bureaux : 30 m²15630/2Dont 30m² de Mezzanine livrée Brut de Béton à aménager

Desserte transports

A 6 kms au sud de Nantes
Accès rocade sorties 46 & 47
En bordure de la route de Clisson
Proche tous commerces et zone commerciale

Consommation énergétique

DPE : En cours de réalisation.

Offres similaires

Surface totale 770 m² - Dispo. Immédiate

LOCAL D'ACTIVITE

44115, HAUTE-GOULAINE

LAV438L

Surface totale 800 m² - Dispo. Immédiate

LOCAL D'ACTIVITE

44115, HAUTE GOULAINE

44_018926

Surface totale 160 m² - Dispo. Immédiate

LOCAL D'ACTIVITE

44115, BASSE-GOULAINE

LR_O52645