logo-locauxrama

Local d'activite à Vendre de 3.075m² à Valenton - Réf. LR-Q38674

Présenté par ADVENIS CONSEIL IDF EST

6.918.750€ HT

Touchez l'image pour voir tous les visuels

Description

ADVENIS CONSEIL vous propose à la location (BEFA) ou à la Vente (VEFA) un bâtiment indépendant à usage d'activité et bureaux d'accompagnement sur 2 niveaux d'activité.
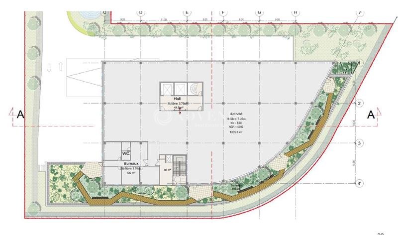
Ce programme Neuf développe 3075 m² environ sur 2 niveaux sur un terrain de 4505 m².
De nombreuse possibilité d'aménagement s'offrent aux futurs utilisateurs.
Le bien bénéfice d'ascenseurs et montes charges, ainsi que d'accès livraison à quais et de plain-pied.
Livraison prévue 18 mois après accord.

Ce bâtiment indépendant à l'architecture de caractère est située au sein d'un parc paysagé certifié BREEAM (Espaces verts soignés et parvis extérieur avec terrasses).

Le site dispose d'un accès livraisons, de bornes de rechargement pour les véhicules électriques, de stationnement VL et PL.
DPE En cours

Les informations sur les risques auxquels ce bien est exposé sont disponibles sur le site Géorisques : www.georisques.gouv.fr

Informations financières

  • Prix de vente :

  • Honoraires :

  • 6.918.750 Euros HT

  • 5 % HT à la charge de l'acquéreur

Surfaces proposées


Bât/LotSurfaceDétail des surfacesPrix de vente /m² HD ou HTObservations
HORIZON/RDC-B1242500Locaux techniques et communs
HORIZON/R+1-A1205Activités : 1205 m²2250Activité HSP : 7m
HORIZON/R+1-B130Bureaux : 130 m²3600Bureaux
HORIZON/RDC-A989Activités : 989 m²2500Activité HSP : 7m
HORIZON/RDC-C356Bureaux : 356 m²3600Espace Bureaux et communs en mezzanine
HORIZON/R+1-C782250Espaces techniques et commun activité
HORIZON/R+1-D183Bureaux : 183 m²3600Espace Bureaux et communs en mezzanine
HORIZON/R+2102250Espace technique commun

Accès routiers

Situé dans la ZAC du Val Pompadour
Situé à 200 mètres de la RN6
Situé au pied du TSCP reliant le RER D et le métro 8

Desserte transports

A 17 kilomètres de Paris
Autoroute A86 sortie 'Carrefour-Pompadour'
RER D station 'Verts de maison'
RER D Station 'Pompadour'
Métro 8 station Pointe du lac par liaison Bus

Consommation énergétique

DPE : En cours de réalisation.

Offres similaires

Surface totale 325 m² - Dispo. Immédiate

LOCAL D'ACTIVITE

94470, BOISSY SAINT LEGER

LR_Q19104

Surface totale 594 m² - Dispo. T3 2026

LOCAL D'ACTIVITE

94450, LIMEIL-BREVANNES

94_0028

Surface totale 2107 m² - Dispo. Immédiate

LOCAL D'ACTIVITE

94400, VITRY SUR SEINE

94_012334